
- Prix
- 300 000 €
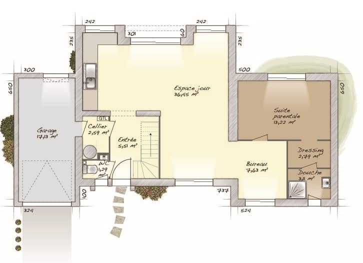
Maison neuve • Vieux-Manoir (76)
- Nom et prix
- Terrain à bâtir Vieux-Manoir (76750) • 300 000 €
Maison idéalement située à VIEUX-MANOIR sur un terrain de 1100 m². À proximité, dans le bourg : école, boulangerie, parc pour enfants, bus vert. Cette maison contemporaine bénéficie d'un agencement agréable : - Salon/séjour avec cuisine ouverte de 50 m², avec une grande baie coulissante de 2,80 m en alu, - cellier, - 3 chambres avec placards, - suite parentale avec dressing et douche à l'italienne, - salle de bains avec baignoire et douche, - garage de 20m². Isolation renforcée avec système de chauffage très économique par pompe à chaleur. Maison certifiée RE20. DPE : A / GSE : B. Venez nous rencontrer et visiter notre showroom : Maisons EXTRACO - 11 Rue Jacques Monod, 76130 Mont-Saint-Aignan Étude gratuite auprès de votre conseiller : Floriane LEBOUCHER (O6 76 57 11 98) (Premier échange par SMS possible)











