

- Prix
- 289 300 €
Maison neuve • Landerneau (29)
- Nom et prix
- Terrain à bâtir () • 289 300 €
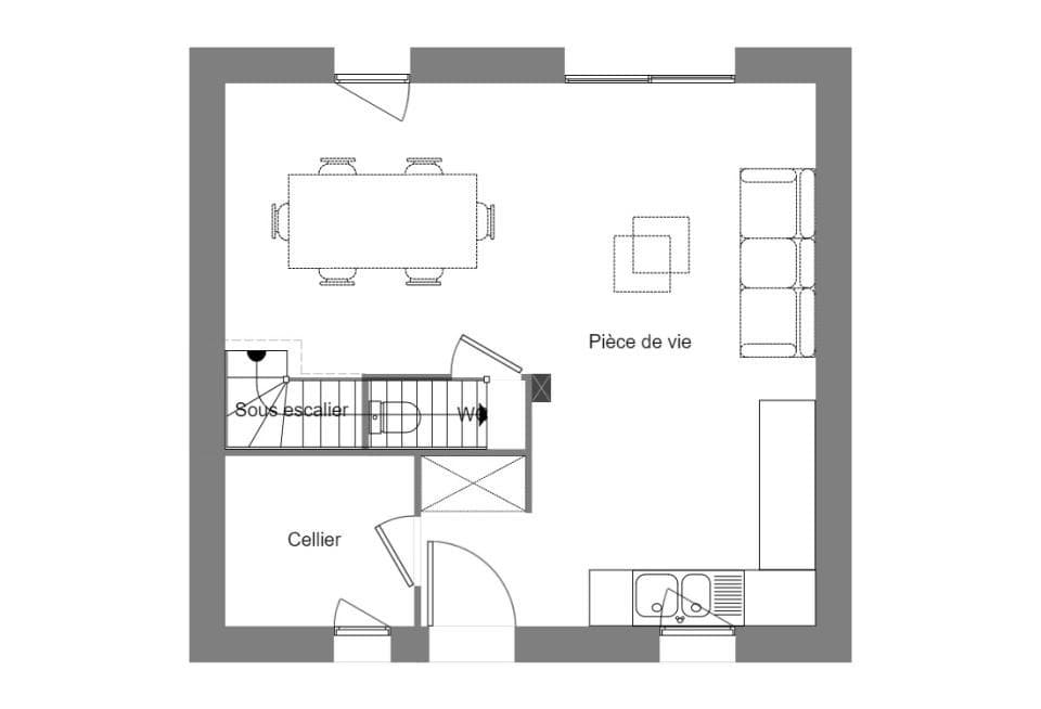
Landerneau : Maison F4 (82 m²) à vendre EMPLACEMENT PRIVILÉGIÉ - MAISON NEUVE DE 4 PIÈCES À vendre à Landerneau (29800), à deux pas de Brest, cette maison neuve de 4 pièces (82 m²) est un véritable coup de coeur. Avec trois chambres, une cuisine fonctionnelle et une salle de bains, elle vous offrira tout le confort nécessaire dans un cadre moderne. Le terrain de 786 m² offre un bel espace extérieur pour profiter pleinement de votre jardin. La maison, sur deux niveaux, est située dans un quartier recherché, à proximité de toutes les commodités : commerces, restaurants, écoles et équipements de loisirs comme des terrains de tennis. À seulement quelques minutes des transports (gare de Landerneau) et avec un accès facile aux nationales N12 et N165, cette maison bénéficie d'une situation idéale. Proposée au prix de 289 300 €, elle constitue une excellente opportunité pour votre futur projet immobilier. Pour plus d'informations, contactez Jean Ropers au 02-98-03-90-90.