

- Prix
- 570 000 €
Maison neuve • Montauban (82)
- Nom et prix
- Terrain à bâtir Montauban (82000) • 570 000 €
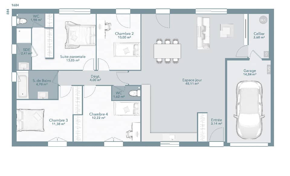
Entrez dans la villa ETOILE, belle, design, lumineuse et sublimée par ses grands espaces et son aménagement intérieur unique. Ses façades sont rythmées et déstructurées avec de beaux volumes géométriques. L'ETOILE, c'est 161 m² d'intérieur que l'on cloisonne ou décloisonne afin que chacun s'épanouisse au gré des saisons et des humeurs... Elle se compose d'une belle et lumineuse pièce à vivre de 60 m², éclairée par sa baie vitrée de 6.00m. Vous bénéficierez deux volumes nuits distincts, avec d'un côté 4 chambres indépendantes avec sa SDB et de l'autre côté un coin parental de 24m² plus un espace bureau indépendant. Son garage de 37 m² vous permettra de garer votre voiture tout en profitant d'un bel espace atelier et de rangement supplémentaire. Cette villa unique est à construire par Oc Résidences, votre constructeur sur mesure du Tarn, l'Aude, l'Hérault, la Haute-Garonne ainsi que les Pyrénées Orientales.











