
- Prix
- 321 000 €
Maison neuve • Mantes-la-Ville (78)
- Nom et prix
- Terrain à bâtir Mantes-la-Ville (78711) • 321 000 €
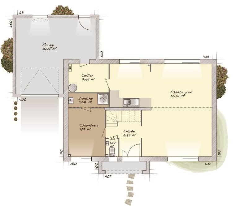
VENTE : maison de 6 pièces (100 m²) à Mantes-la-Ville MAISON 6 PIÈCES NEUVE À proximité de la gare de Mantes-la-Jolie (Paris à 35 min par le Transilien J), en vente à Mantes-la-Ville (78711), votre agence Les Maisons Extraco Gravigny est ravie de vous proposer cette maison de 6 pièces de 100 m². Elle dispose de quatre chambres, d'une cuisine ouverte sur un séjour/salon, d'une salle de bains, d'un cellier et d'un garage. Le terrain de la propriété s'étend sur 244 m². C'est une maison de 2 niveaux. Elle est neuve. Il y a plusieurs établissements scolaires (maternelle, élémentaire et collège) à moins de 10 minutes à pied. Côté transports, on trouve sept gares à moins de 10 minutes en voiture. Il y a une bibliothèque, des boulangeries, des commerces, un supermarché, une supérette et un bureau de poste dans les environs. Le marché Place du marché a lieu chaque jeudi matin. Son prix de vente est de 321 000 €. Prenez contact avec notre constructeur (KTARI Aurélie : 06-28-09-94-39) pour plus de renseignements sur le bien. Concrétisez vos projets immobiliers avec Extraco Construction Rénovation Gravigny.











