

- Prix
- 195 000 €
Maison neuve • Trébons (65)
- Nom et prix
- Terrain à bâtir () • 195 000 €
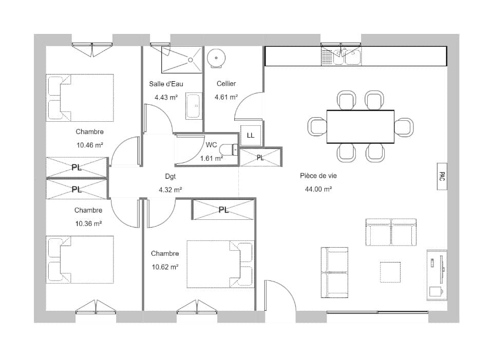
VENTE : maison T4 (90 m²) à Trebons IDÉALEMENT SITUÉE - MAISON 4 PIÈCES NEUVE Maisons Bruno Petit GHPA vous propose cette maison de 4 pièces de plain-pied de 90 m². Cette maison compte trois chambres, une cuisine et une salle de bains. Le terrain du bien est de 864m². Maison proposée à partir de 195000€ Hors frais de notaire. A composer selon votre projet et vos envies. N'hésitez pas à prendre contact avec notre agence (Demandez Laurent BAZIN 06 21 35 99 37 Bruno Petit à Juillan) pour toute question sur la maison, sur les démarches à suivre ou sur les modalités de vente.






