

- Prix
- 233 429 €
Maison neuve • Saint-Porquier (82)
- Nom et prix
- Terrain à bâtir Saint-Porquier (82700) • 233 429 €
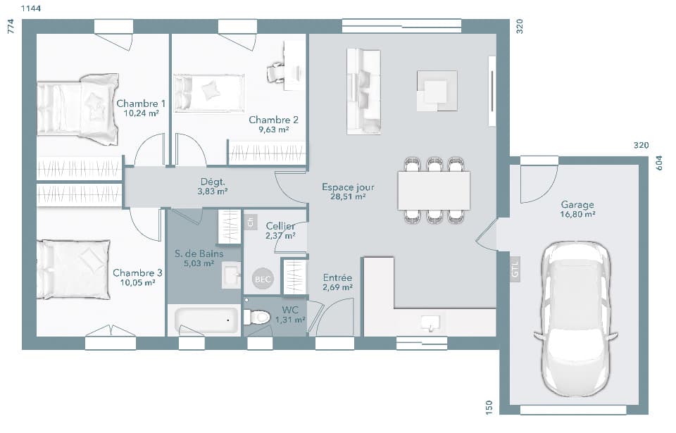
'Votre agence Maisons France Confort d'Aucamville vous propose ce beau projet maison + terrain proche de la commune de St Porquier Une maison spécialement étudiée et optimisée pour réussir votre projet d'investissement en toute sérénité. Tout est imaginé pour le confort de ses occupants mais aussi pour la tranquillité de ses propriétaires. Ce modèle Optima de 85 m² est composé de 3 chambres dont une suite parentale avec salle d'eau privative en option, d'une salle de bains, d'une espace jour de 35 m², d'un grand cellier et d'un garage. .233.429.€ hf Pour toutes informations, contactez l'agence MAISONS FRANCE CONFORT d'Aucamville au 05.34.43.84.38'










