

- Prix
- 376 500 €
Maison neuve • Saint-Divy (29)
- Nom et prix
- Terrain à bâtir () • 376 500 €
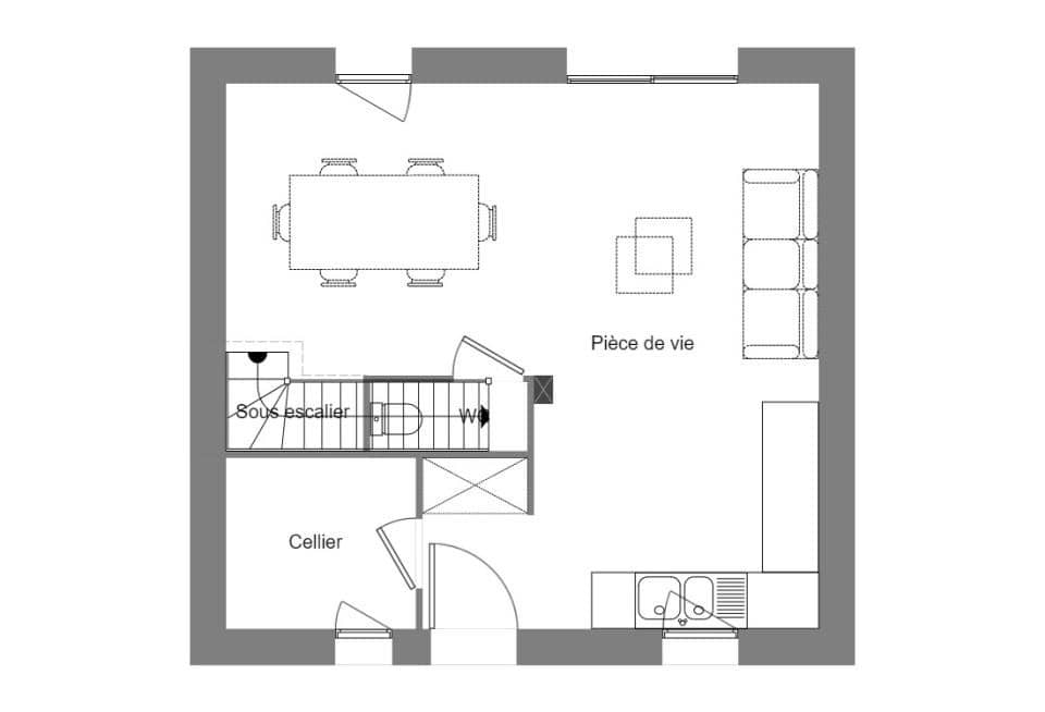
Maison T5 (125 m²) à vendre à Saint-Divy IDÉALEMENT SITUÉE - MAISON 5 PIÈCES NEUVE En vente à quelques kilomètres de la mer et à deux pas de Brest, notre agence Maisons de l'Avenir Brest est ravie de vous proposer cette maison de 5 pièces de plain-pied de 125 m², idéalement située dans Saint-Divy (29800). Son intérieur offre quatre chambres, une cuisine et deux salles de bains. Cette maison est neuve. Le terrain du bien est de 501 m². La maison se trouve dans un secteur convoité. L'École Primaire Publique Jean de la Fontaine et l'École Primaire Privée Sainte Marie sont implantées à moins de 10 minutes à pied, tout comme une crèche. Côté transports, on trouve cinq gares à moins de 10 minutes en voiture. Les nationales N12, N165 et N265 sont accessibles à moins de 8 km. Il y a une bibliothèque et deux boulangeries à proximité du logement. Elle est proposée à l'achat pour 376 500 €. Prenez contact avec Erwan TILLY pour tout renseignement sur la maison, sur les démarches à suivre ou sur les modalités de vente. Donnez vie à vos projets immobiliers avec Maisons de l'Avenir Brest.










