

- Prix
- 234 000 €
Maison neuve • Saint-Sulpice (81)
- Nom et prix
- Terrain à bâtir Saint-Sulpice (81370) • 234 000 €
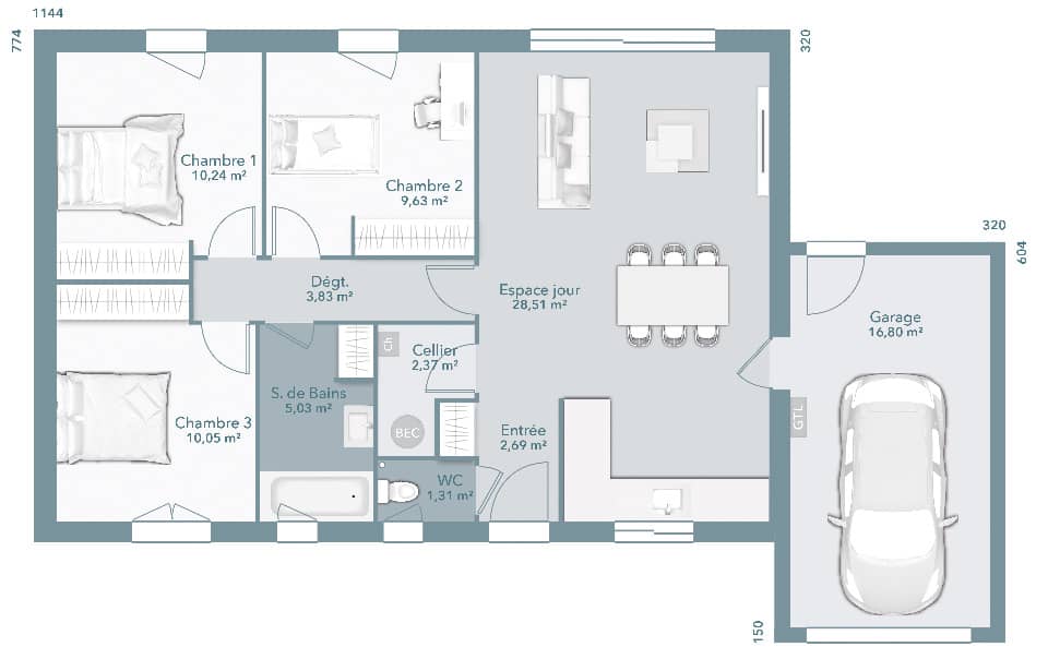
Votre agence Maisons France Confort d'AUCAMVILLE vous propose ce beau projet maison + terrain à St SULPICE la Pointe. D'une architecture sobre et élégante, cette maison est conçue de manière ingénieuse et fonctionnelle. Ce modèle, EGA de 78m² avec garage accolé en option, a de nombreux atouts : 3 chambres, une salle de bains et une pièce de vie avec cuisine de plus de 30m². Des options peuvent être ajoutées au plan de base. Elle se trouve sur une parcelle de 570 m² à 5 minutes des commodités et à 20 minutes de Toulouse. Pour toutes informations, contactez l'agence MAISONS FRANCE CONFORT d'AUCAMVILLE au 05 34 43 84 38 Xavier FEUGUEUR. PRIX : 234 000 € HF










