

- Prix
- 725 300 €
Maison neuve • Bagneux (92)
- Nom et prix
- Terrain à bâtir () • 725 300 €
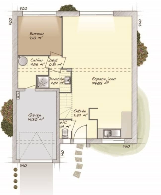
Maisons BERVAL, votre constructeur de confiance, vous propose une sélection de maisons d'exception au coeur de la commune. Chaque modèle allie modernité, confort et élégance, conçu pour répondre à toutes vos attentes. Modèle Castel Béranger Maison individuelle Castel Béranger Le Castel Béranger, inspiré de l'architecture historique, est une maison au charme intemporel et personnalisable selon vos envies. Profitez d'un cadre de vie unique et prestigieux avec des espaces intérieurs spacieux et lumineux, des finitions haut de gamme et des détails architecturaux soignés. Chaque pièce de cette maison est conçue pour offrir confort et élégance. Située dans un environnement serein, cette maison est idéale pour ceux qui recherchent un lieu de vie exceptionnel. Pourquoi choisir Maisons BERVAL ? • Expertise locale : Implantés à Antony, nous connaissons parfaitement les spécificités de la région. • Qualité supérieure : Nos maisons sont construites avec des matériaux de haute qualité et un savoir-faire reconnu. • Personnalisation : Chaque modèle peut être adapté à vos besoins et à vos goûts. N'attendez plus pour réaliser votre rêve de maison individuelle! Pour de plus amples informations veuillez contacter Sébastien LAFAYE - 06/26/89/32/04 Terrain vu avec notre partenaire foncier, sous réserves de disponibilité Prix hors frais de notaire et hors frais annexes












