

- Prix
- 355 000 €
Maison neuve • Changé (72)
- Nom et prix
- Terrain à bâtir Changé (72560) • 355 000 €
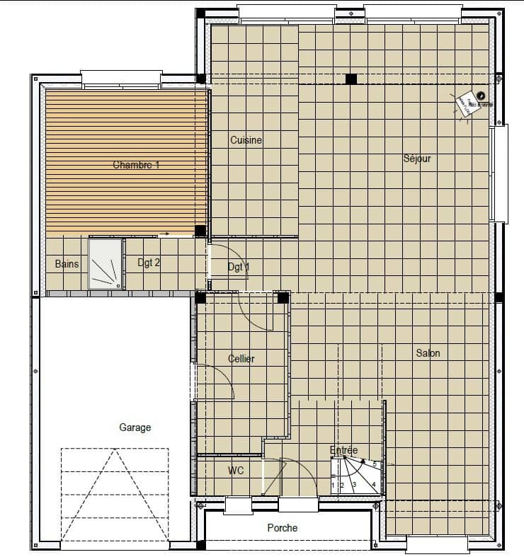
VENTE : maison T6 (98 m²) à Changé EMPLACEMENT PRIVILÉGI- MAISON 6 PIÈCES NEUVE En vente à quelques kilomètres du Mans, nous sommes heureux de vous présenter, bénéficiant d'un emplacement d'exception dans Changé (72560), cette maison de 6 pièces de plain-pied de 98 m² et de 1 081 m² de terrain. Conçue de plain-pied, elle propose trois chambres, une cuisine et deux salles de bains. Cette maison est neuve. La maison est située dans un quartier convoité. L'École Élémentaire Publique de l'Epau, le Collège Jacques Peletier et l'École Maternelle Publique de l'Auneau sont implantés à moins de 10 minutes à pied. Niveau transports en commun, on trouve quatre gares à moins de 10 minutes en voiture. Les autoroutes A28 et A11 sont accessibles à moins de 7 km. Il y a un tennis, quatre commerces, deux boulangeries, un supermarché, un bureau de poste et une supérette à proximité. Elle est proposée à l'achat pour 355 000 €. N'hésitez pas à prendre contact avec notre agence (François HOUDAYER : 06-23-38-26-90) pour toute question sur la maison. Maine Construction Saint-Saturnin est là pour vous accompagner dans tous vos projets immobiliers.










