

- Prix
- 378 600 €
Maison neuve • Éragny (95)
- Nom et prix
- Terrain à bâtir Éragny (95610) • 378 600 €
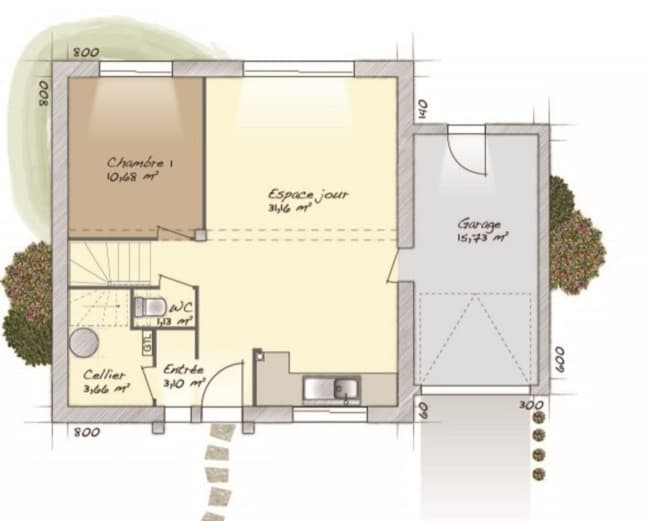
VENTE d'une maison de 6 pièces (98 m²) à Éragny IDÉALEMENT SITUÉE - MAISON 6 PIÈCES NEUVE Au pied de la gare d'Éragny-Neuville (Paris à 30 min avec le Transilien J), Maisons Balency Pierrelaye vous présente à vendre, idéalement située dans Éragny (95610), cette maison de 6 pièces de 98 m² avec vue sur jardin. Son intérieur propose quatre chambres, une cuisine et une salle de bains. Le terrain de la propriété s'étend sur 170 000 m². Cette maison comporte 2 niveaux. Elle est neuve. Cette maison se situe dans un secteur attractif. Il y a des établissements scolaires de tous types (de la maternelle au lycée) à moins de 10 minutes à pied. Côté transports, on trouve la gare Éragny-Neuville à quelques pas de la maison. Il y a une bibliothèque, deux tennis, un bassin de natation, des commerces, des boulangeries, trois supermarchés, des épiceries et des boucheries-charcuteries à quelques minutes à peine. Son prix de vente est de 378 600 €. Contactez Christophe TALAMONI (tél : 06-49-55-08-27) pour plus d'informations sur la maison, sur les modalités de vente ou sur les démarches à suivre. Donnez vie à vos projets immobiliers avec Maisons Balency Pierrelaye.