

- Prix
- 518 200 €
Maison neuve • Antony (92)
- Nom et prix
- Terrain à bâtir () • 518 200 €
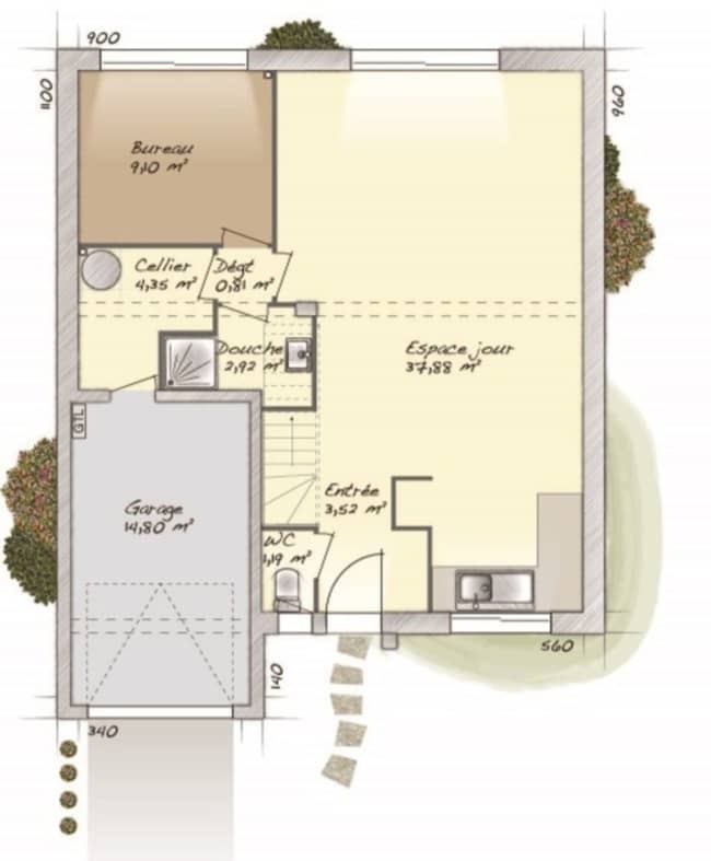
Antony : maison T5 (98 m²) à vendre MAISON 5 PIÈCES NEUVE À côté du RER B (10 min de Paris), Maisons Balency Saint-Maur-des-Fossés vous présente cette maison de 5 pièces de 98 m² et de 310 m² de terrain à vendre à Antony (92160). Cette maison comporte 2 niveaux. Son intérieur est composé de quatre chambres, d'une cuisine et d'une salle de bains. La maison est neuve. Il y a des écoles du primaire et du secondaire à moins de 10 minutes à pied, tout comme huit crèches. Niveau transports en commun, on trouve la ligne de RER B (Antony) juste à côté. Il y a une bibliothèque, un bassin de natation, des commerces, des boulangeries, trois supermarchés, une poissonnerie et des boucheries-charcuteries dans les environs. Son prix de vente est de 518 200 €. Contactez Krizia FERNE (07-83-36-28-46) pour toute question sur la maison.











