

- Prix
- 885 400 €
Maison neuve • Bagneux (92)
- Nom et prix
- Terrain à bâtir () • 885 400 €
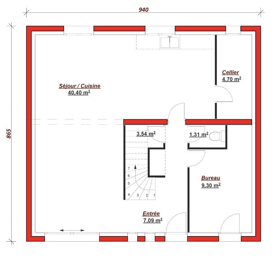
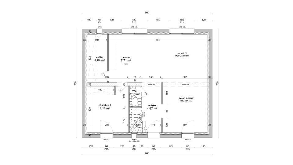
Maisons BERVAL, votre constructeur de confiance, vous propose une sélection de maisons d'exception au coeur de la commune. Chaque modèle allie modernité, confort et élégance, conçu pour répondre à toutes vos attentes. Modèle Concorde 130 Maison individuelle Concorde 130 Découvrez la Concorde 130, un bijou architectural de 130 m² qui réunit modernité, confort et espace. Cette maison lumineuse et spacieuse est conçue pour les familles cherchant un cadre de vie élégant et fonctionnel. Profitez d'un vaste séjour avec baies vitrées donnant sur une belle terrasse, d'une cuisine ouverte et équipée idéale pour les repas en famille, d'une suite parentale avec dressing et salle de bain privative pour un confort optimal, ainsi que de trois chambres supplémentaires et une seconde salle de bain. Le garage intégré complète ce modèle parfait pour vivre dans un environnement calme et agréable. Pourquoi choisir Maisons BERVAL ? • Expertise locale : Implantés à Antony, nous connaissons parfaitement les spécificités de la région. • Qualité supérieure : Nos maisons sont construites avec des matériaux de haute qualité et un savoir-faire reconnu. • Personnalisation : Chaque modèle peut être adapté à vos besoins et à vos goûts. N'attendez plus pour réaliser votre rêve de maison individuelle! Pour de plus amples informations veuillez contacter Sébastien LAFAYE - 06/26/89/32/04 Terrain vu avec notre partenaire foncier, sous réserves de disponibilité Prix hors frais de notaire et hors frais annexes











