

- Prix
- 699 500 €
Maison neuve • Sucy-en-Brie (94)
- Nom et prix
- Terrain à bâtir Sucy-en-Brie (94370) • 699 500 €
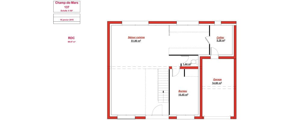
Sucy-en-Brie : maison de 5 pièces (147 m²) à vendre MAISON 5 PIÈCES NEUVE À proximité de la station Sucy-Bonneuil du RER A (20 min de Paris), à vendre à Sucy-en-Brie (94370), nous sommes ravis de vous présenter cette maison de 5 pièces de 147 m². Son intérieur se divise en trois chambres, une cuisine et deux salles de bains. Le terrain du bien s'étend sur 400 m². Cette maison comporte 2 niveaux. Elle est neuve. Il y a des établissements scolaires (de la maternelle au lycée) à moins de 10 minutes à pied, tout comme trois crèches. Côté transports en commun, on trouve le RER A, D, E et C ainsi que 22 gares à moins de 10 minutes en voiture. Il y a une bibliothèque, un bassin de natation, des commerces, des boulangeries, trois supermarchés, une épicerie et un bureau de poste dans les environs. 2 marchés animent les environs. Son prix de vente est de 699 500 €. Contactez notre agence (Franck THAREAU : 01-48-81-08-79) pour plus d'informations sur cette propriété et sur les démarches à suivre. Maisons Berval Le Perreux-sur-Marne est là pour vous accompagner à toutes les étapes de votre projet.











