

- Prix
- 395 000 €
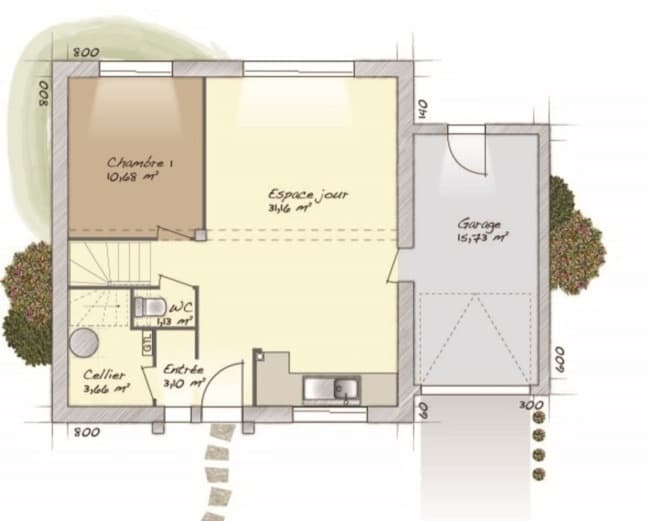
Maison neuve • L Hay Les Roses (94)
- Nom et prix
- Maison à étage modulable - 90 m² à L'Haÿ-les-Roses • 395 000 €
Maisons STILL vous propose un projet de construction unique sur la commune recherchée de L'Haÿ-les-Roses. Située à proximité immédiate des commodités (écoles, commerces, transports en commun, et espaces verts), cette maison allie confort moderne et cadre de vie agréable. Ce projet de maison à étage de 90 m² est entièrement modulable pour s'adapter à vos besoins et vos envies. Conçue avec des matériaux de qualité et une architecture contemporaine, elle comprend : Un espace de vie lumineux avec un séjour et une cuisine ouverte. 3 ou 4 chambres, selon vos préférences d'aménagement. Une salle de bain moderne et des WC séparés. Un jardin privatif pour profiter des beaux jours. Maisons STILL met son expertise à votre service pour personnaliser chaque détail de votre futur chez-vous. Vous choisissez les finitions, les aménagements intérieurs et l'agencement des espaces pour une maison qui vous ressemble. Pour plus d'informations, contactez monsieur MABIOLA de Maisons STILL dès aujourd'hui au 06 24 60 79 67. Garanties et assurances obligatoires incluses (voir détails en agence). Prix indicatif hors peintures, hors options et hors frais annexes. Référence annonce : JM-ROSES











