

- Prix
- 370 600 €
Maison neuve • Porcheville (78)
- Nom et prix
- Terrain à bâtir Porcheville (78440) • 370 600 €
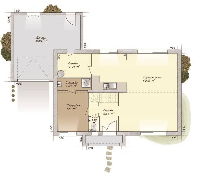
VENTE d'une maison F5 (98 m²) à Porcheville IDÉALEMENT SITUÉE - MAISON 5 PIÈCES NEUVE En vente : à proximité de la gare d'Issou-Porcheville (Paris à 55 min par le Transilien J), votre agence Maisons Balency Coignières est ravie de vous présenter cette maison de 5 pièces de 98 m² et de 469 m² de terrain avec vue sur jardin idéalement située dans Porcheville (78440). Son intérieur offre quatre chambres, une cuisine et une salle de bains. C'est une maison de 2 niveaux. Elle est neuve. Cette maison se situe dans un quartier prisé. Des établissements scolaires (de la maternelle au lycée) se trouvent à moins de 10 minutes à pied. Niveau transports, il y a la gare Issou-Porcheville à quelques pas du bien. Il y a un bassin de natation, un tennis, une bibliothèque, une boulangerie, un commerce, un bureau de poste et une épicerie à proximité. Elle est à vendre pour la somme de 370 600 €. Contactez notre agence (DUTEURTRE Thibault : 06-23-41-73-81) pour toute information sur la maison. Maisons Balency Coignières vous accompagne dans toutes vos démarches et à toutes les étapes de l'achat.











