

- Prix
- 338 500 €
Maison neuve • Cuisy (77)
- Nom et prix
- Terrain à bâtir Cuisy (77165) • 338 500 €
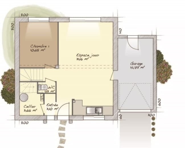
Maison de 6 pièces (98 m²) à vendre à Cuisy PROCHE DE MONTREUIL - MAISON 6 PIÈCES NEUVE Proche du Transilien K (gare de Dammartin-Juilly-Saint-Mard, 30 min de Paris), notre agence Maisons Balency Dammartin-en-Goële est ravie de vous proposer cette maison de 6 pièces de 98 m² et de 400 m² de terrain à Cuisy (77165). Elle se divise en quatre chambres, une cuisine et une salle de bains. C'est une maison de 2 niveaux. Elle est neuve. Une école élémentaire est implantée dans le quartier. Côté transports en commun, il y a quatre gares à moins de 10 minutes en voiture. On trouve un tennis à proximité du logement. Elle est à vendre pour la somme de 338 500 €. N'hésitez pas à prendre contact avec notre agence (Sébastien DARTEVELLE : 06-24-63-58-60) pour tout renseignement sur cette maison ou sur les démarches à suivre. Maisons Balency Dammartin-en-Goële vous accompagne dans tous vos projets immobiliers et à toutes les étapes de votre projet.