

- Prix
- 643 200 €
Maison neuve • Igny (91)
- Nom et prix
- Terrain à bâtir Igny (91430) • 643 200 €
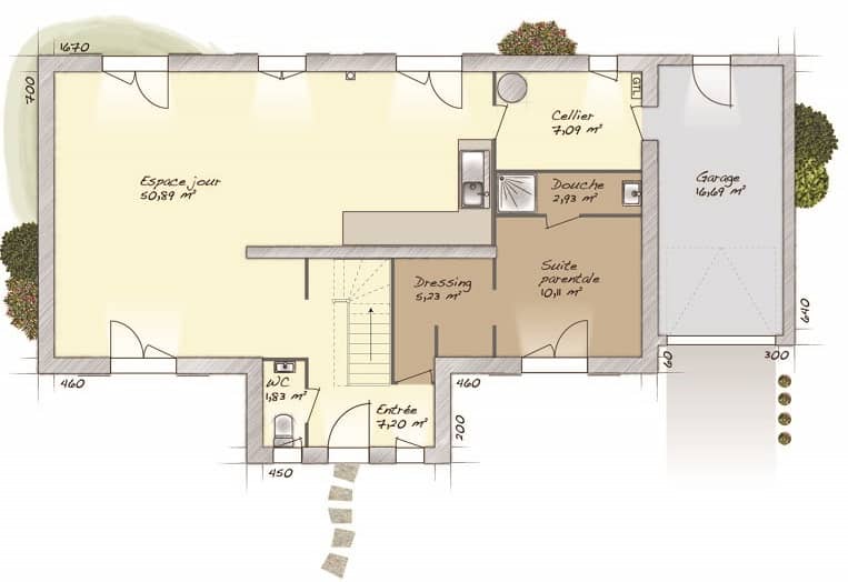
Maisons BERVAL, votre constructeur de confiance, vous propose une sélection de maisons d'exception au coeur de la commune. Chaque modèle allie modernité, confort et élégance, conçu pour répondre à toutes vos attentes. Modèle Trocadéro 123 Maison individuelle Trocadéro 123 La Trocadéro 123 est un modèle de raffinement et de confort, offrant 123 m² de surface habitable. Ses grandes baies vitrées inondent les espaces de vie de lumière naturelle, créant une atmosphère apaisante et accueillante. Profitez d'un séjour spacieux, d'une cuisine ouverte et moderne, d'une suite parentale avec salle de bain privative, de deux chambres supplémentaires et d'une seconde salle de bain. La terrasse extérieure et le jardin offrent des espaces de détente en plein air, tandis que le garage intégré complète cette maison de rêve. Cette maison est idéale pour ceux qui recherchent une vie confortable et élégante. Pourquoi choisir Maisons BERVAL ? • Expertise locale : Implantés à Antony, nous connaissons parfaitement les spécificités de la région. • Qualité supérieure : Nos maisons sont construites avec des matériaux de haute qualité et un savoir-faire reconnu. • Personnalisation : Chaque modèle peut être adapté à vos besoins et à vos goûts. N'attendez plus pour réaliser votre rêve de maison individuelle ! Pour de plus amples informations veuillez contacter Sébastien LAFAYE - 06/26/89/32/04 Terrain vu avec notre partenaire foncier, sous réserves de disponibilité Prix hors frais de notaire et hors frais annexes












