

- Prix
- 592 000 €
Maison neuve • Saint-Sébastien-sur-Loire (44)
- Nom et prix
- Terrain à bâtir Saint-Sébastien-sur-Loire (44230) • 592 000 €
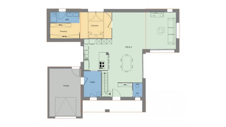
VENTE : maison de 5 pièces (144 m²) à Saint-Sébastien-sur-Loire EMPLACEMENT PRIVILÉGIÉ - MAISON 5 PIÈCES NEUVE À vendre : située à 26 km de l'océan Atlantique, bénéficiant d'un emplacement d'exception dans Saint-Sébastien-sur-Loire (44230), Maisons Tradilignes Saint-Sébastien-sur-Loire vous propose cette maison de 5 pièces de 144 m² et de 420 m² de terrain. Son intérieur comporte quatre chambres, une cuisine et deux salles de bains. C'est une maison de 2 niveaux. Elle est neuve. Cette maison est située dans un secteur prisé. Le Collège René Bernier, l'École Maternelle Publique Centre et l'École Élémentaire Publique Théodore Monod sont implantés à moins de 10 minutes à pied, tout comme trois crèches. Niveau transports en commun, il y a 11 gares à moins de 10 minutes en voiture. Des autoroutes et les nationales N844 et N249 sont accessibles à moins de 10 km. On trouve une bibliothèque, un tennis, des commerces, des boulangeries, un supermarché, une poissonnerie et une supérette dans les environs. Enfin, le marché Place Cambronne anime le quartier chaque mardi matin. Elle est proposée à l'achat pour 592 000 €. Prenez contact avec Franck DUJARDIN (tél : 02-40-33-10-00) pour toute information sur la maison ou sur les modalités de vente.











