

- Prix
- 405 000 €
Maison neuve • Aigné (72)
- Nom et prix
- Terrain à bâtir () • 405 000 €
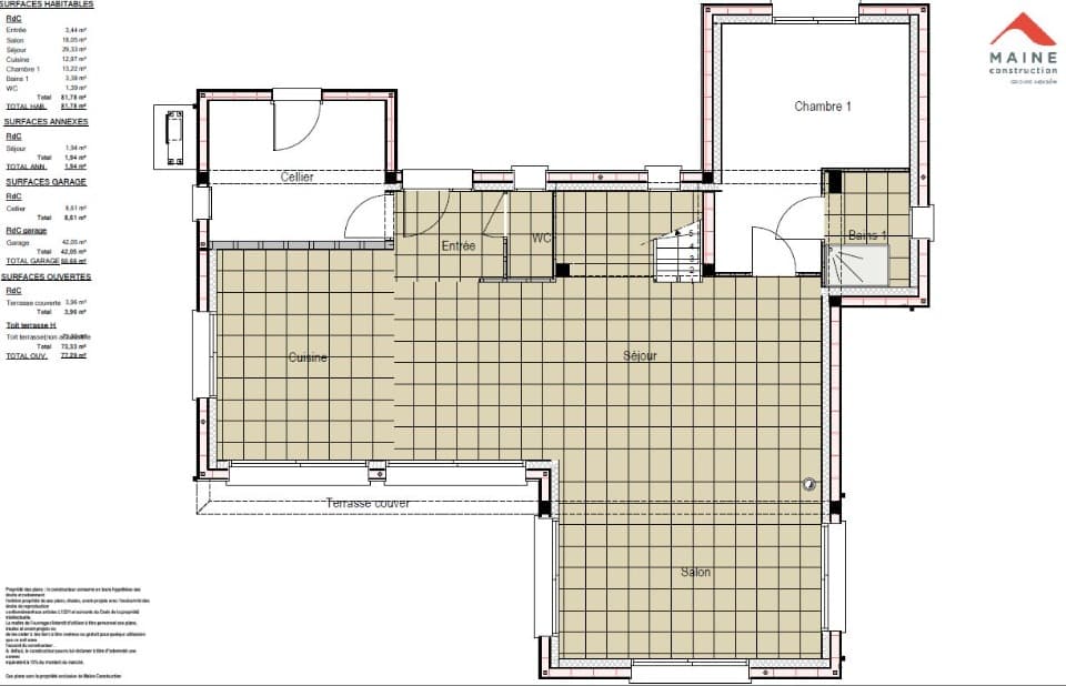
Aigné - PROCHE DU MANS En vente : située à quelques kilomètres du Mans, Maine Construction Saint-Saturnin vous propose à Aigné (72650), cette maison de 152 m² Cette maison comporte 2 niveaux. Elle se divise en quatre chambres, dont une belle suite parentale au rez-de-chaussée, à l'étage 3 chambres et 2 salle d'eau. Le terrain du bien est de 373 m². L'École Primaire Publique Roger Bazille est implantée à moins de 10 minutes à pied. Côté transports, il y a quatre gares à moins de 10 minutes en voiture. L'autoroute A11 est accessible à 4 km. On trouve un tennis dans les environs. Son prix de vente est de 405 000 €. Contactez Sophie RIBEMONT (07-77-76-34-73) pour toute question sur la maison ou sur les modalités de vente. Concrétisez vos projets immobiliers avec Maine Construction Saint-Saturnin.

