
Maison neuve • Saint-Fargeau-Ponthierry (77)
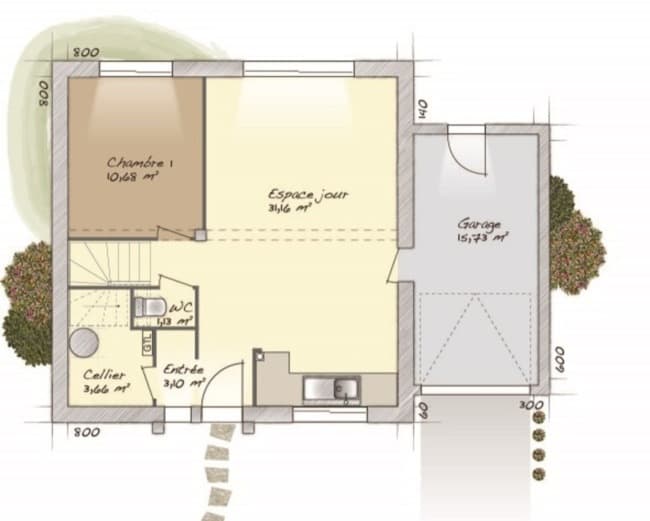
Belle Maison de 5 pièces à construire à Saint-Fargeau-Ponthierry (77310) - à partir de 320 000 € Découvrez cette charmante demeure 'Première Emprunte' de 90 m² à bâtir sur un terrain de 508 m², idéalement située à Saint-Fargeau-Ponthierry, en Seine-et-Marne. Ce projet, proposé spécifiquement par Les Maisons Balency d'Ormoy, filiale du Groupe Hexaôm, 1er constructeur de maisons individuelles en France, allie confort, performance et personnalisation. Nos maisons sont entièrement sur mesure ou peuvent être adaptées à partir de nos modèles existants, tout en respectant les dernières normes RE2020, garantissant un excellent niveau de performance énergétique (DPE A ou B). L'environnement est particulièrement agréable : écoles, commerces et supermarchés sont accessibles en quelques minutes, tout comme la gare de Saint-Fargeau-Ponthierry - Boissise-le-Roi (ligne R du Transilien) permettant de rejoindre Paris-Gare de Lyon en moins d'une heure. Les villes de Melun et Évry-Courcouronnes se trouvent à environ 20 minutes, offrant de nombreuses infrastructures et services complémentaires. Notre équipe des Maisons Balency d'Ormoy vous accompagne dans toutes les étapes de votre projet, de la recherche du terrain jusqu'à la remise des clés. Contactez-nous dès maintenant au 09 67 70 15 81 pour donner vie à votre projet de construction en Île de France !
Proposé par MAISONS BALENCY - YVELINES










