

- Prix
- 193 000 €
Maison neuve • Le Born (31)
- Nom et prix
- Terrain à bâtir Le Born (31340) • 193 000 €
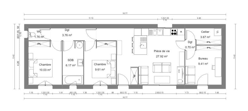
L'agence Maisons France Confort d'AUCAMVILLE - NOUVEAU - Projet de construction RE 2020 avec cette maison de 83m² à LE BORN . Idéale pour un premier investissement, cette maison neuve est entièrement personnalisable. Le modèle présenté est ACTUA 83, conception traditionnelle de plain-pied. Il comporte une entrée, un séjour/cuisine de 38m², un cellier, un WC et un espace nuit composé de 3 chambres et une salle de bains. Le garage de 16m² est accolé à la maison et accessible par la cuisine. Au coeur de la campagne toulousaine, sur une parcelle constructible de 1100 m², vous profiterez des toutes les commodités à seulement 7 minutes. Vous pourrez accéder à Toulouse en 40 minutes. Votre conseiller de l'agence Maisons France Confort d'AUCAMVILLE est à votre disposition au 05 34 43 84 38 Xavier FEUGUEUR. PRIX : 193 000 € HF










