
Maison neuve • Yerres (91)
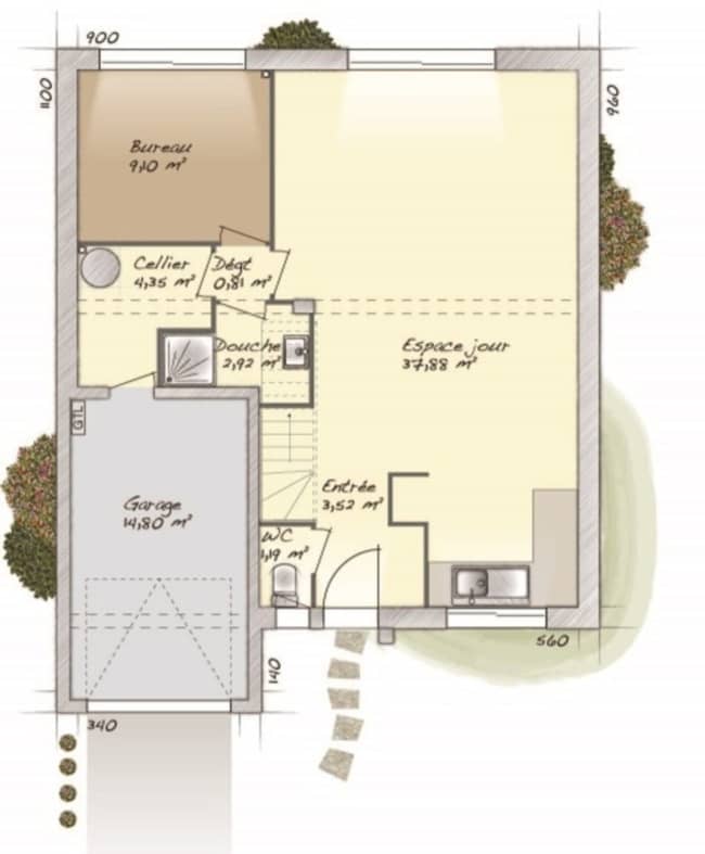
Yerres : maison T5 (90 m²) à vendre MAISON 5 PIÈCES NEUVE À quelques minutes du RER D (20 min de Paris), en vente à Yerres (91330), Maisons Balency Saint-Maur-des-Fossés vous propose cette maison de 5 pièces de 90 m². Elle propose trois chambres, une cuisine et une salle de bains. Le terrain du bien est de 530 m². Cette maison compte 2 niveaux. Elle est neuve. Il y a des établissements scolaires du primaire et du secondaire à moins de 10 minutes à pied, tout comme une crèche. Niveau transports en commun, on trouve trois lignes de RER (D, A et C) ainsi que 23 gares à moins de 10 minutes en voiture. Il y a de nombreux commerces, un bureau de poste, deux boucheries-charcuteries et plusieurs épiceries à proximité. Le marché Place du marché anime le quartier. Elle est à vendre pour la somme de 437 000 €. Contactez notre agence (MONTANIER Christophe : 06-10-23-51-22) pour obtenir de plus amples renseignements sur cette maison. Maisons Balency Saint-Maur-des-Fossés vous accompagne à toutes les étapes de l'achat et dans tous vos projets immobiliers.
Proposé par MAISONS BALENCY - YVELINES










