

- Prix
- 229 000 €
Maison neuve • Courlandon (51)
- Nom et prix
- MAISON CONTEMPORAINE • 229 000 €
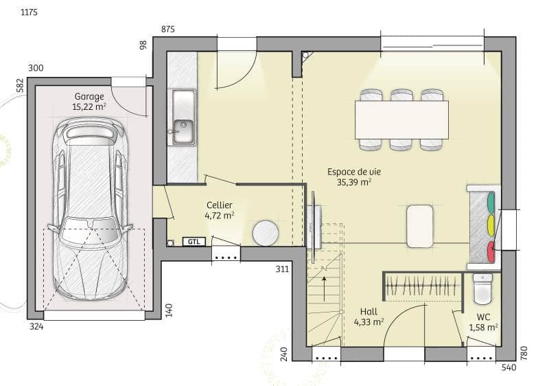
Maisons Still (constructeur de maisons sur-mesure depuis 1970) vous propose un projet de construction d'une maison contemporaine entièrement modulable (intérieur, extérieur et sans surcout) situé à 15 mn de Reims / Thillois sur la commune de Courlandon. Accès autoroute et départementale à proximité. La surface habitable de cette maison est de 90m². Elle se compose d'un grand espace de vie de 45 m² avec de grandes baies vitrées, salle de bain avec baignoire ou douche Italienne, 3 ou 4 chambres et WC séparé. Les plans sont modifiables et sans surcout, le carrelage est inclus dans l'espace de vie. La maison correspond au dernière norme énergétique RE2020. Elle est équipée d'un système de chauffage en pompe à chaleur ce qui permet d'avoir une faible consommation énergétique. Le garage est inclus dans notre prestation. À l'extérieur, le terrain est vendu borner et hors lotissement. Il vous offre un beau jardin avec une jolie exposition. Pour plus d'informations, merci de prendre contact avec Mr BARTHELEMY de Maisons Still à Reims. A très vite. Garanties et assurances obligatoires incluses (voir détails en agence). Prix indicatif hors peintures, hors options et hors frais annexes.











