

- Prix
- 555 000 €
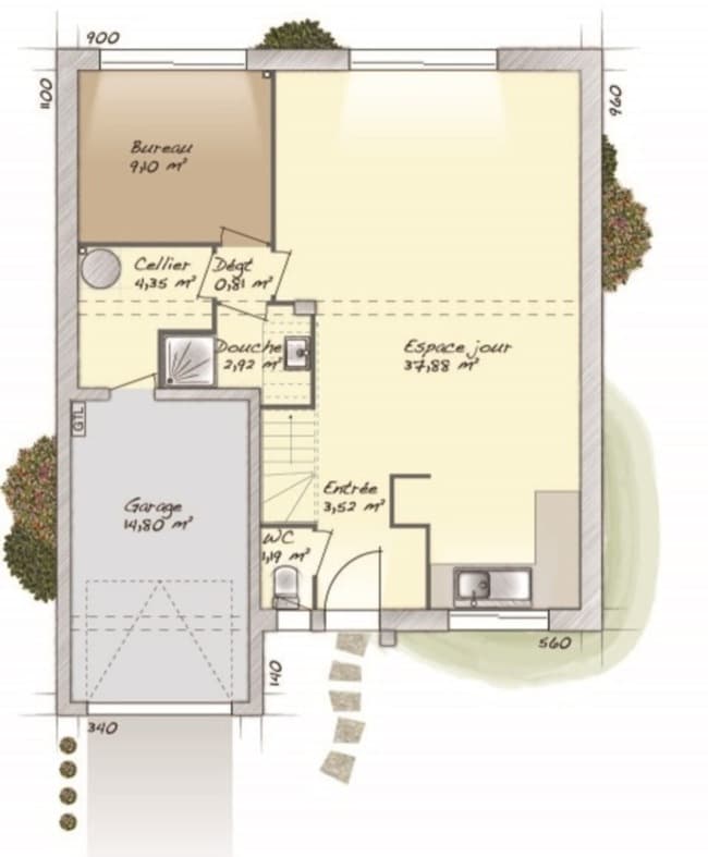
Maison neuve • Eaubonne (95)
- Nom et prix
- Terrain à bâtir () • 555 000 €
VENTE d'une maison F6 (128 m²) à Eaubonne MAISON 6 PIÈCES NEUVE En vente : proche du Transilien H (gare d'Ermont Halte, 20 min de Paris), Maisons Balency Moisselles vous présente cette maison de 6 pièces de 128 m² à Eaubonne (95600). Il s'agit d'une maison de 2 niveaux. Elle inclut quatre chambres, une cuisine et deux salles de bains. La maison est neuve. Le terrain de la propriété s'étend sur 485 m². Tous les types d'établissements scolaires (de la maternelle au lycée) sont implantés à moins de 10 minutes à pied, tout comme deux structures d'accueil pour les enfants en bas âge. Côté transports en commun, on trouve le RER C et D ainsi que 50 gares à moins de 10 minutes en voiture. Il y a un tennis, des commerces, des boulangeries, deux supermarchés, deux bureaux de poste et des boucheries-charcuteries à quelques minutes de la maison. Le marché Centre-Ville anime les environs. Elle est proposée à l'achat pour 555 000 €. N'hésitez pas à prendre contact avec notre agence (DUCOS Denis : 06-80-06-50-40) pour obtenir de plus amples informations sur cette maison, sur les modalités de vente ou sur les démarches à suivre.












