

- Prix
- 562 000 €
Maison neuve • Parmain (95)
- Nom et prix
- Terrain à bâtir Parmain (95620) • 562 000 €
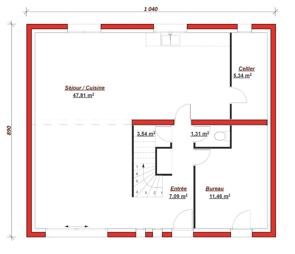
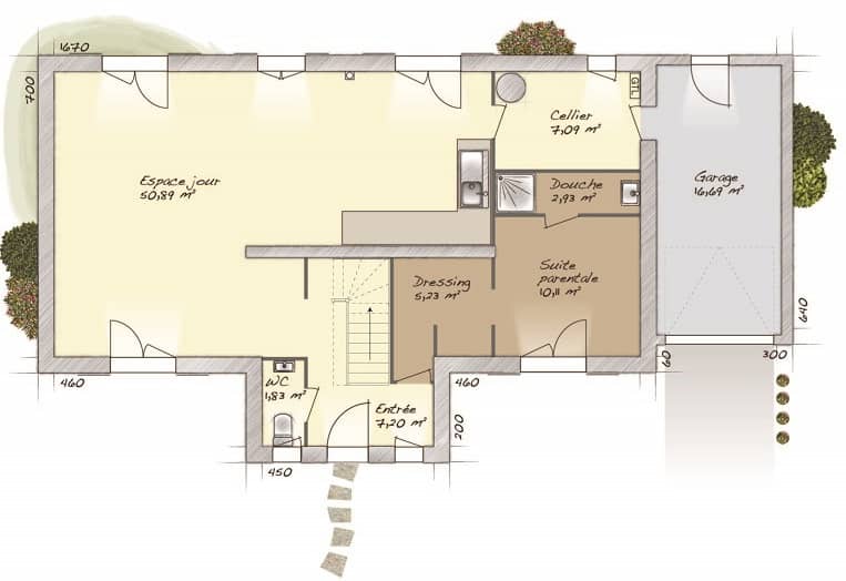
Maisons Berval vous propose un projet de construction sur la commune de Parmain. Ce terrain de 918 m2 vous séduira à coup sûr. Cette maison en R+Combles vous offre au rez-de-chaussée un espace salon/séjour et cuisine ouverte, un bureau ainsi qu'un cellier. A l'étage, la Chaillot 140 vous offre une salle de bains, 3 chambres ainsi qu'une suite parentale avec dressing et salle d'eau. Le modèle est totalement adaptable à vos envies et besoins et personnalisable grâce à de nombreuses options de finition. Nous consulter. Le prix affiché comprend le coût du terrain et de la construction hors frais de notaire et taxes. Pour tous renseignements, veuillez contacter Monsieur Stéphane LEPAGE au 0683911324 Maisons Berval est certifiée NF Habitat HQE.












