

- Prix
- 592 000 €
Maison neuve • Chantilly (60)
- Nom et prix
- Terrain à bâtir Chantilly (60500) • 592 000 €
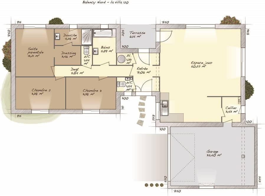
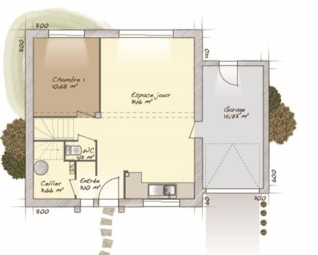
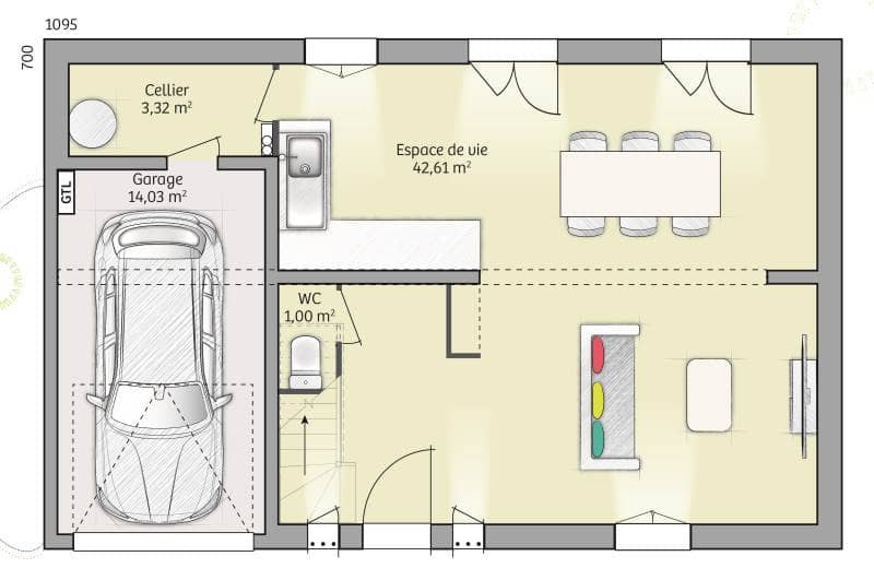
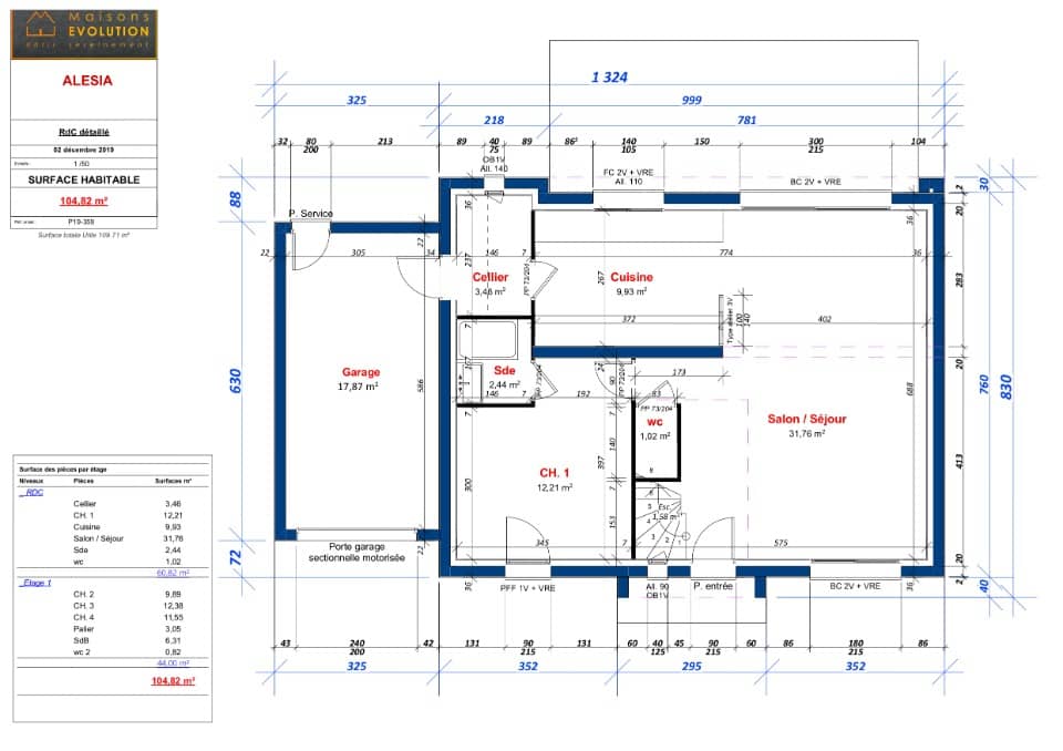
Maison de plain pied , normes RE 2020 , située à seulement 7 minutes du Chateau de Chantilly , sur un terrain de 2200m² . Clos et arboré , environnement paisible , à deux pas de l' école. Cette maison dispose de 4 chambres avec rangements intégrés , séjour carrelé ,2 salles d'eau équipées ,cellier et garage , packs alarme et domotique , baies aluminium , volets roulants centralisés et intégrés à la maçonnerie ... Plans 100% personnalisables et modifiables . Accompagnement intégral : Financement , étude technique du terrain , gestion administrative . Frais annexes ( raccordements , viabilisation , puisards, enlèvements des terres excédentaires , chemin d'accès )inclus dans le prix de cette annonce . Contactez moi pour une étude gratuite . Rendez vous en agence ou à votre domicile . VERON ANTHONY /07/77/85/58/88/












