

- Prix
- 405 624 €
Maison neuve • Gagny (93)
- Nom et prix
- Terrain à bâtir () • 405 624 €
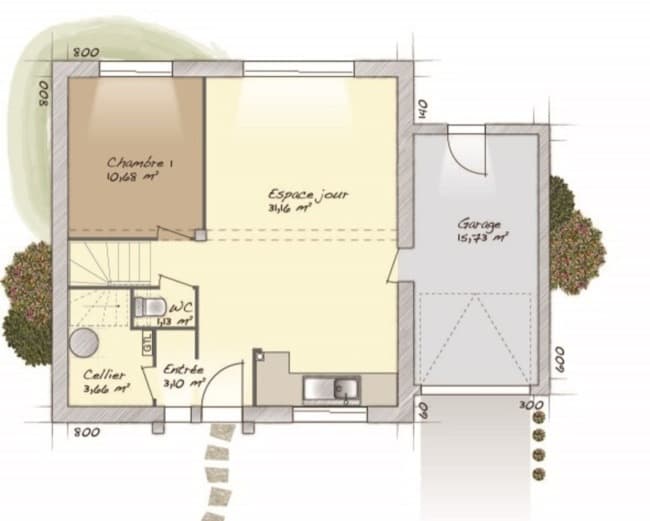
VENTE d'une maison de 6 pièces (98 m²) à Gagny MAISON 6 PIÈCES NEUVE À vendre : à côté de la station Le Chénay Gagny (Paris à 20 min avec le RER E), notre agence Maisons Balency Dammartin-en-Goële est ravie de vous présenter à Gagny (93220), cette maison de 6 pièces de 98 m². Il s'agit d'une maison de 2 niveaux. Elle se divise en quatre chambres, une cuisine et une salle de bains. La maison est neuve. Le terrain de la propriété est de 330 m². Il y a tous les types d'écoles (de la maternelle au lycée) à moins de 10 minutes à pied. Niveau transports en commun, on trouve la station de RER Le Chénay-Gagny (ligne E) ainsi que la gare Le Chénay Gagny dans les alentours. Il y a une bibliothèque, un bassin de natation, un tennis, des boulangeries, des commerces, des épiceries, un bureau de poste et une poissonnerie à quelques minutes. Elle est à vendre pour la somme de 405 624 €. Prenez contact avec Sébastien DARTEVELLE (06-24-63-58-60) pour plus de renseignements sur la maison. Concrétisez vos projets immobiliers avec Maisons Balency Dammartin-en-Goële.