

- Prix
- 188 965 €
Maison neuve • CHEMEIN DU MOULIN GAILLARD (78)
- Nom et prix
- Projet de construction d'une maison 116 m² avec terrain à LE PECQ (78) • 188 965 €
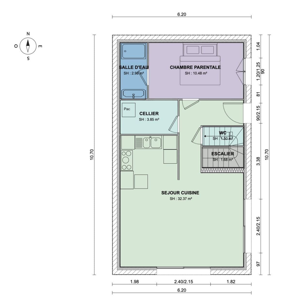
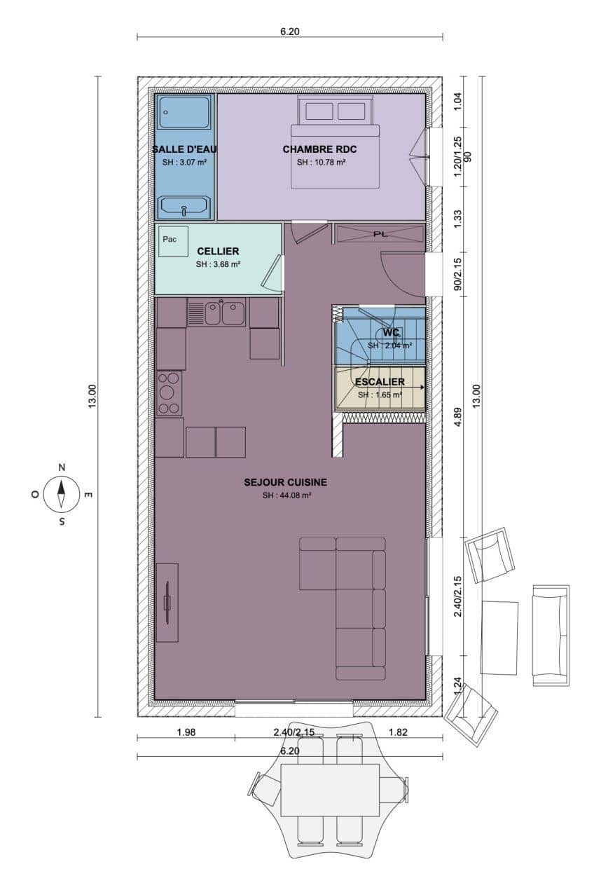
Le modèle Hermès de 116 m² est une maison contemporaine à étage pensée pour allier confort, fonctionnalité et accessibilité. Ce modèle a été conçu par notre bureau d’études pour répondre aux attentes des familles en quête d’un logement moderne à prix attractif. Côté extérieur, Hermès affirme son caractère grâce à des façades modernes intégrant un jeu d’enduit personnalisable. Ce design adaptable permet d’intégrer harmonieusement la maison dans tout type d’environnement. Les menuiseries anthracite viennent renforcer le style contemporain et se marient parfaitement avec l’enduit gris, créant un ensemble élégant et intemporel. Un porche d’entrée, discret mais structurant, vient souligner l’architecture du pavillon en ajoutant une touche de singularité. À l’intérieur, Hermès s’organise sur deux niveaux. Au rez-de-chaussée, l’entrée donne directement sur un vaste séjour traversant et lumineux, intégrant une cuisine ouverte idéale pour les moments de convivialité. Un grand cellier offre un espace de rangement pratique et fonctionnel, tandis qu’un WC complète ce niveau. À l’étage, un palier avec vide sur hall permettant d’apporter de la lumière naturelle supplémentaire au séjour, dessert trois chambres spacieuses, dont une belle suite parentale avec une salle d’eau privative et un espace dressing. Une salle de bain commune et un second WC indépendant viennent compléter l’étage. Informations du terrain : EN LIMITE DE ST GERMAIN EN LAYE Le Pavillon Français construit des maisons sur-mesure alliant design, caractère et qualité depuis plus de 30 ans. Chaque projet est unique : vous choisissez la configuration, les matériaux, les finitions… nous concrétisons votre vision. Nos constructions sont encadrées par le CCMI, un contrat garantissant un prix définitif et des délais de livraison précis. Grâce à notre certification NF Habitat, vous bénéficiez d’un haut niveau de confort, de performance et de durabilité. Avec un accompagnement personnalisé à chaque étape, nous faisons de votre maison un lieu unique qui vous ressemble. Faites confiance à un constructeur expérimenté, à l’écoute et engagé à vos côtés pour bâtir la maison de vos rêves. Construction aux normes RE2020. Prix avec assurance dommages-ouvrage comprise, hors VRD, terrain viabilisé, frais de notaire non compris, frais divers non compris. Terrain sélectionné et vu pour vous sous réserve de disponibilité et au prix indiqué par notre partenaire foncier. Conditions et visuels non contractuels. Cette annonce a été créée et diffusée avec le logiciel VITAHOME. Contactez Carlos DE SA au 06 70 88 52 85 (Le Pavillon Français - Agence de Rambouillet).










