

- Prix
- 852 000 €
Maison neuve • Poissy (78)
- Nom et prix
- Terrain à bâtir Poissy (78300) • 852 000 €
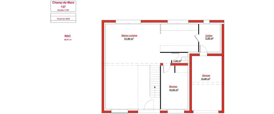
VENTE d'une maison T7 (100 m²) à Poissy EMPLACEMENT PRIVILÉGI- VUE DÉGAGÉE En vente : à deux pas du Transilien J (20 min de Paris), nous sommes heureux de vous proposer cette maison de 7 pièces de 100 m² avec vue dégagée bénéficiant d'un emplacement privilégié dans Poissy (78300). Elle comporte quatre chambres, une cuisine et trois salles de bains. Le terrain de la propriété s'étend sur 500 m². Cette maison compte 2 niveaux. Elle est neuve. La maison est située dans un secteur recherché. On trouve plusieurs établissements scolaires (maternelle, élémentaire et lycée) à moins de 10 minutes à pied, tout comme trois structures d'accueil pour les tout-petits. Niveau transports, il y a la ligne de RER A (Poissy) ainsi que 28 gares à moins de 10 minutes en voiture. On trouve un bassin de natation, un tennis, des commerces, trois boulangeries, deux supermarchés, quatre épiceries et une boucherie-charcuterie à quelques minutes à peine. Son prix de vente est de 852 000 €. Contactez notre agence (LE MOEL Marc : 06-52-02-43-99) pour toute information sur le bien, sur les modalités de vente ou sur les démarches à suivre. Maisons BERVAL bénéficie d'une triple certification, NF-HQE-PROPERMEA










