logo de nos-terrains.com

748 maisons neuves à vendre à Neuville sur oise (95) (à partir de 250,000 €)

Résultats de recherche

Maison neuve - Terrain à bâtir  () à Bazemont (78), prix 460 000 €
Logo de l'entreprise pour Terrain à bâtir  ()
Prix
460 000 €

Maison neuveBazemont (78)

Nom et prix
Terrain à bâtir ()460 000 €

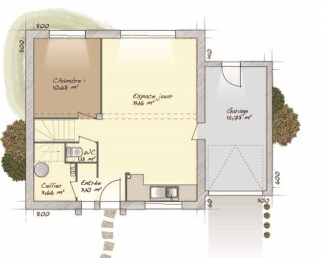
Venez découvrir cette magnifique Maison en R+Comble avec son style contemporain permet d'allier modernité et luminosité. D'une surface de 116 m² elle dispose d'une belle entrée avec placard, une belle pièce de vie de plus de 45 m² avec cellier attenant à la cuisine, une chambre et un WC indépendant. A l'étage 3 chambres dont une grande suite parentale avec salle d'eau et dressing privatif, une salle de bain et un WC indépendant, le palier dispose d'un vaste vide sur hall donnant sur l'entrée et laissant la lumière s'installer dans cette belle maison. N'hésitez pas à contactez Mme Tessie FLEUREAU 07/62/06/10/64 pour plus de renseignement. PLANS DE MAISON SUR MESURE - PERSONNALISATION Je vous propose de construire cette magnifique maison sur un terrain de 807 m² situé à Bazemont. Très bien situé avec toutes les commodités à proximité (école, collège, lycée à moins de 8 min en voiture). Accès à la ligne J et N depuis la gare d'Epone / Mézières, Ne tardez plus et venez visiter. Terrain proposé par un partenaire foncier selon disponibilités et autorisation de publicité au prix de 149 000 euros. Hors droit d'enregistrement, frais de notaire, et frais annexes. Maison proposée au prix de 265 000 euros (Hors branchements et raccordements, viabilisation du terrain, papiers peints, peintures, revêtement de sol. Tarif modifiable sans préavis). Etiquette énergie : A. Différents modèles disponibles pour ce terrain. Assurances et garanties du constructeur (RC professionnelle, décennale, dommage ouvrage, garantie de remboursement de l'acompte, livraison à prix et délai convenu) Le projet au global comprenant le terrain, les frais de notaire, la viabilisation publique, privée, les frais annexes et la construction est d'environ 460 000 €

116 m²
3966 €/m²
807 m²
Maison neuve - Terrain à bâtir L'Isle-Adam (95290) à L'Isle-Adam (95), prix 2 239 000 €
Logo de l'entreprise pour Terrain à bâtir L'Isle-Adam (95290)
Prix
2 239 000 €

Maison neuveL'Isle-Adam (95)

Nom et prix
Terrain à bâtir L'Isle-Adam (95290)2 239 000 €

Maisons Berval vous propose un projet de construction sur la commune de L'Isle Adam. Ce terrain de 2096 m2 vous séduira à coup sûr. Le modèle de maison 'Hygge', offre une résidence de 265 m2 célébrant le bien-être scandinave. Avec une approche novatrice de l'éclairage naturel à travers les coupoles VELUX, la maison harmonise confort et esthétique. Le rez-de-chaussée de 155 m2 intègre des espaces de vie (112 m2) alliant fonctionnalités et lumière naturelle. La cuisine épurée, intégrée dans un spacieux salon de 85 m2, et la suite parentale (14 m2) comprenant salle de bains et dressing contribuent à créer une atmosphère raffinée & confortable. L'espace bien-être avec sauna (10 m2) et salle de sport (8,60 m2) s'ouvre sur une terrasse proposant un bain nordique. Le sous-sol réserve des surprises avec un espace de 54 m2, incluant un parking, une salle de cinéma de 25 m2, et une buanderie de 10 m2. Les combles comprennent trois chambres équivalentes (environ 11 m2) et une salle de bain, éclairées par une luminosité exceptionnelle. Une petite terrasse privative complète cet étage. Le modèle est totalement adaptable à vos envies et besoins et personnalisable grâce à de nombreuses options de finition. Nous consulter. Le prix affiché comprend le coût du terrain et de la construction hors frais de notaire et taxes. Pour tous renseignements, veuillez contacter Monsieur Stéphane LEPAGE au 0683911324 Maisons Berval est certifiée NF Habitat HQE.

265 m²
8449 €/m²
2096 m²

Illustration Maisons neuves en vente à proximité de Neuville sur oise (95)

Maisons neuves en vente à proximité de Neuville sur oise (95)

Neuville-sur-Oise, située dans le département du Val-d'Oise (95), est une charmante commune française. Proche de Paris, elle offre un cadre de vie paisible tout en étant bien connectée. La ville est particulièrement connue pour son patrimoine historique, notamment l'église Saint-Nicolas. Investir dans une maison neuve à Neuville-sur-Oise, c'est choisir un environnement agréable et dynamique, idéal pour les familles et les professionnels. Profitez des avantages d'un cadre de vie équilibré et des opportunités immobilières attractives.

Autres villes actives à Val-d'oise (95)


Conseils pour l'achat d'un bien immobilier

Découvrez notre sélection de maisons neuves, synonymes de confort moderne et de sérénité. Trouvez votre futur chez-vous.

L'avantage d'une maison neuve

Choisir une maison neuve, c'est bénéficier des dernières normes énergétiques (RE2020) pour des économies durables, de frais de notaire réduits, et des garanties constructeur (parfait achèvement, décennale) pour une tranquillité d'esprit.

Nos types d'annonces

Explorez nos annonces : maisons clés en main prêtes à décorer, ou programmes terrain + maison pour personnaliser certains aspects.