

- Prix
- 1 450 000 €
Maison neuve • Saint-Maur-des-Fossés (94)
- Nom et prix
- Terrain à bâtir Saint-Maur-des-Fossés (94210) • 1 450 000 €
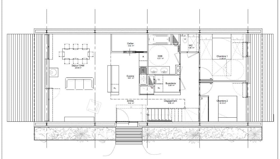
La Varenne Saint-Hilaire L'ensemble des éléments, équipements intérieurs et extérieurs sont interchangeables (menuiserie en bois ou en aluminium, chauffage au sol ou non, parquet et/ou carrelage, etc.) en fonction de vos envies ou de votre budget. Certains éléments architecturaux sont également adaptables à vos goûts et besoins : forme de la toiture (toit plat, toit terrasse, toit à deux ou quatre pentes), habillage des façades (bardage acier ou autre), brise soleil, escalier, garage, etc. Ce projet est proposé sur un terrain d'une superficie de 460m2. Situé dans une rue pavillonnaire à 300m des Bords de Marne et 1km du RER La Varenne. Sous-sol à prévoir. Demandez plus de renseignements auprès de votre conseiller à Saint Maur au 06.41.56.29.99 Chez Maisons Berval, nous proposons des constructions sur mesure, de standing, aux dernières normes et NF HQE (Normes françaises haute qualité environnementale)