

- Prix
- 280 000 €
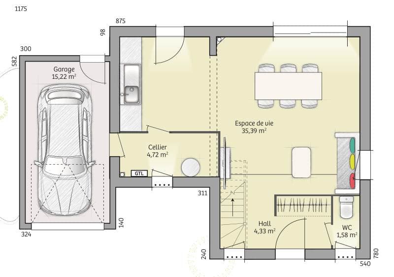
Maison neuve • Meaux (77)
- Nom et prix
- Terrain à bâtir Meaux (77100) • 280 000 €
Benoit SAISON de MAISONS BALENCY (Groupe Hexaom, 1er constructeur national ) au 06/30/47/58/05 vous propose de réaliser votre projet de construction 100% SUR-MESURE sur ce beau terrain. Ne manquez pas cette occasion unique de construire la maison de vos rêves. Elle sera réalisée en fonction de vos souhaits et de votre budget. Descriptif et matériaux de qualité, maison RE 2020, contrat CCMI. Plans réalisés pas nos soins, modèle sur mesure, maison écologique avec une architecture contemporaine ou moderne. Terrain proposé par notre partenaires fonciers, sous réserve de disponibilité. (Offre Terrain+Maison hors frais de notaires). Contactez moi dès maintenant au 06/30/47/58/05 pour discuter de votre projet et commencer à transformer vos idées en réalité. Votre maison personnalisée vous attend !!











