

- Prix
- 278 274 €
Maison neuve • Ognes (60)
- Nom et prix
- Terrain à bâtir Ognes (60440) • 278 274 €
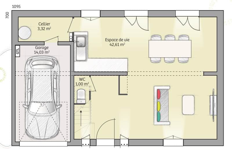
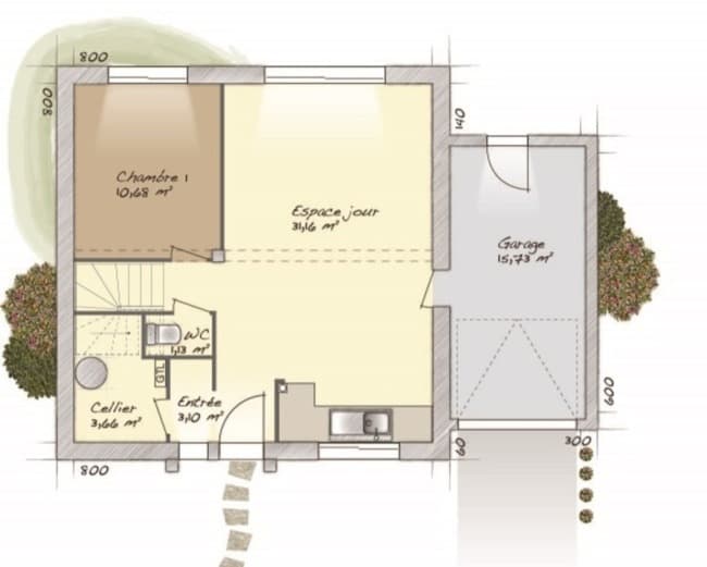
VENTE d'une maison de 5 pièces (80 m²) à Ognes PROCHE D'AULNAY-SOUS-BOIS - MAISON 5 PIÈCES NEUVE À quelques minutes du Transilien K (gare de Nanteuil-le-Haudouin, 40 min de Paris), nous vous présentons cette maison de 5 pièces de 80 m² et de 400 m² de terrain à Ognes (60440). Cette maison compte 2 niveaux. Son intérieur compte trois chambres, une cuisine et une salle de bains. La maison est neuve. Une école maternelle est implantée dans le quartier. Niveau transports en commun, il y a les gares Nanteuil-le-Haudouin et Le Plessis-Belleville à moins de 10 minutes en voiture. Il y a un accès à la nationale N2 à 5 km et Aulnay-sous-Bois est située à 30 km. Elle est proposée à l'achat pour 278 274 €. Contactez notre agence (DARTEVELLE Sébastien : 06-24-63-58-60) pour toute information sur cette maison, sur les démarches à suivre ou sur les modalités de vente. Maisons Balency Dammartin-en-Goële vous accompagne à toutes les étapes de l'achat et dans tous vos projets immobiliers.












