

- Prix
- 365 274 €
Maison neuve • Coupvray (77)
- Nom et prix
- Terrain à bâtir () • 365 274 €
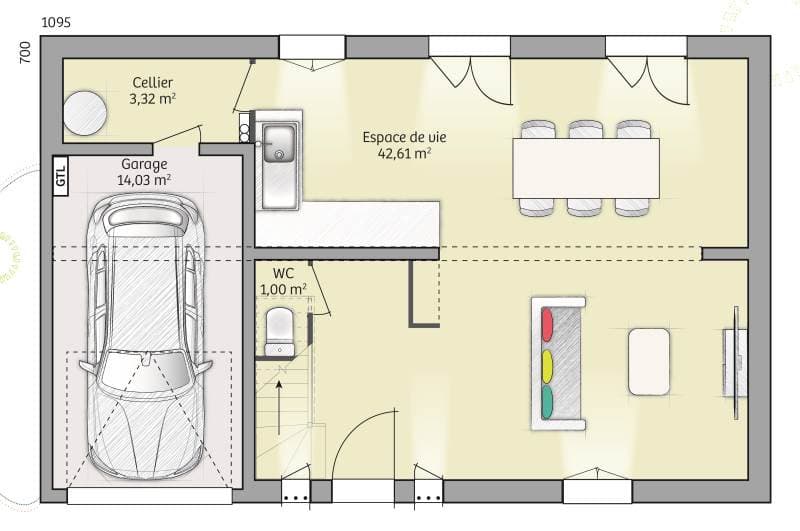
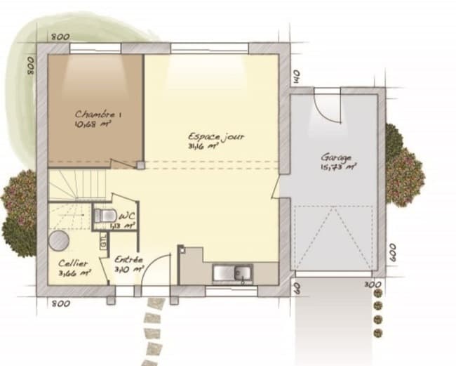
Coupvray : maison T5 (80 m²) à vendre MAISON 5 PIÈCES NEUVE - PROCHE DE MONTREUIL À proximité du Transilien P (gare d'Esbly, 30 min de Paris), à vendre à Coupvray (77700), venez découvrir cette maison de 5 pièces de 80 m² et de 450 m² de terrain. Elle inclut trois chambres, une cuisine et une salle de bains. Cette maison comporte 2 niveaux. Elle est neuve. L'École Élémentaire Francis et Odette Teisseyre, l'École Maternelle Francis et Odette Teisseyre, le Collège Louis Braille et l'École Primaire Jean-Louis Etienne sont implantés à moins de 10 minutes à pied. Niveau transports, il y a la ligne de RER A (Chessy-Marne-La-Vallée) ainsi que huit gares à moins de 10 minutes en voiture. On trouve trois tennis, un bassin de natation, deux boulangeries et un supermarché à proximité du logement. Elle est proposée à l'achat pour 365 274 €. Contactez notre agence (DARTEVELLE Sébastien : 06-24-63-58-60) pour obtenir de plus amples renseignements sur la maison, sur les démarches à suivre ou sur les modalités de vente. Maisons Balency Dammartin-en-Goële vous accompagne à toutes les étapes de votre projet et dans tous vos projets immobiliers.











