

- Prix
- 197 000 €
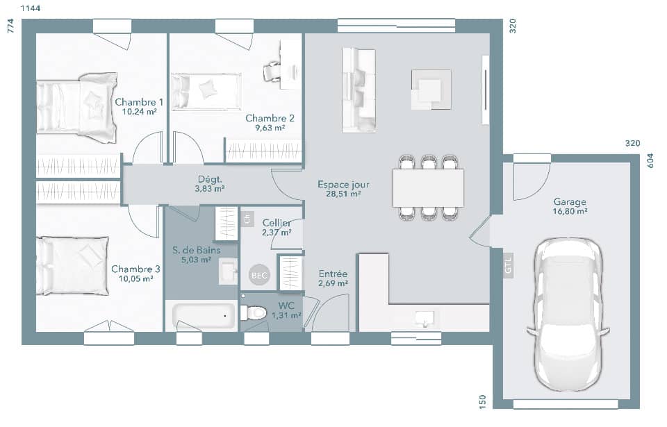
Maison neuve • Castelnau-d'Estrétefonds (31)
- Nom et prix
- Terrain à bâtir Castelnau-d'Estrétefonds (31620) • 197 000 €
Votre agence Maisons France Confort d'AUCAMVILLE vous propose ce beau projet maison + terrain à 5 minutes de CASTELNAU d'Estretefonds . D'une architecture sobre et élégante, cette maison est conçue de manière ingénieuse et fonctionnelle. Ce modèle, EGA de 78m² avec garage accolé en option, a de nombreux atouts : 3 chambres, une salle de bains et une pièce de vie avec cuisine de plus de 30m². Des options peuvent être ajoutées au plan de base. Elle se trouve sur une parcelle de 270 m² à 5 minutes des commodités et à 25 minutes de Toulouse. Pour toutes informations, contactez l'agence MAISONS FRANCE CONFORT d'AUCAMVILLE au 05 34 43 84 38 Xavier FEUGUEUR. PRIX : 197 000 € HF










