

- Prix
- 969 000 €
Maison neuve • Antony (92)
- Nom et prix
- Terrain à bâtir Antony (92160) • 969 000 €
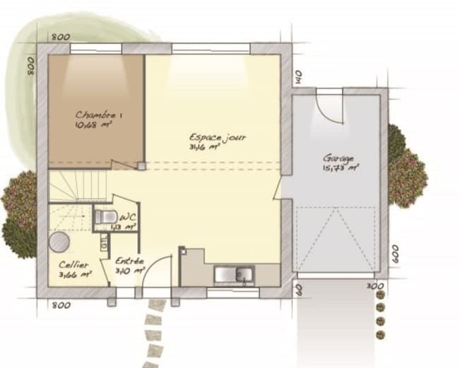
VENTE d'une maison de 6 pièces (98 m²) à Antony MAISON 6 PIÈCES NEUVE À proximité du RER B (10 min de Paris), nous vous proposons en vente à Antony (92160), cette maison de 6 pièces de 98 m². Cette maison possède 2 niveaux. Elle inclut quatre chambres, une cuisine et une salle de bains. Cette maison est neuve. Le terrain du bien s'étend sur 870 m². Il y a des établissements scolaires du primaire et du secondaire à moins de 10 minutes à pied, tout comme huit crèches. Côté transports, on trouve la ligne de RER B (Antony) dans les environs. Il y a une bibliothèque, un bassin de natation, des commerces, des boulangeries, trois supermarchés, des épiceries et un bureau de poste à quelques minutes. Elle est proposée à l'achat pour 969 000 €. N'hésitez pas à prendre contact avec Christophe MONTANIER (06-10-23-51-22) pour toute question sur cette maison ou sur les modalités de vente. Faites de vos projets immobiliers une réalité avec Maisons Balency Saint-Maur-des-Fossés.











