

- Prix
- 427 000 €
Maison neuve • Herblay (95)
- Nom et prix
- Terrain à bâtir Herblay (95220) • 427 000 €
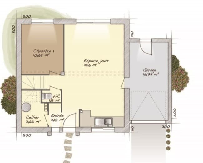
VENTE d'une maison de 6 pièces (110 m²) à Herblay IDÉALEMENT SITUÉE - VUE SANS VIS-À-VIS En vente : à côté du Transilien J (20 min de Paris), votre agence Maisons Balency Pierrelaye est heureuse de vous présenter, idéalement située dans Herblay (95220), cette maison de 6 pièces de 110 m² et de 490 m² de terrain sans vis-à-vis. Elle dispose de cinq chambres, d'une cuisine et de deux salles de bains. Il s'agit d'une maison de 2 niveaux. Elle est neuve. La maison se situe dans un quartier recherché. Plusieurs établissements scolaires (maternelle, élémentaire, primaire et collège) sont implantés à moins de 10 minutes à pied, tout comme deux structures d'accueil pour les tout-petits. Niveau transports en commun, il y a la gare Herblay dans un rayon de 1 km. On trouve des commerces, des boulangeries, un supermarché, des épiceries et un bureau de poste à proximité. Elle est à vendre pour la somme de 427 000 €. Prenez contact avec Christophe TALAMONI (tél : 06-49-55-08-27) pour toute information sur la maison ou sur les démarches à suivre. Donnez vie à vos projets immobiliers avec Maisons Balency Pierrelaye.









