logo de nos-terrains.com

513 maisons neuves à vendre à Paulhac (31) (entre 150,000 € et 250,000 €)

Résultats de recherche

Maison neuve - Terrain à bâtir Bouloc (31620) à Bouloc (31), prix 239 000 €
239 000 €
105 m²
2276 €/m²

Maison neuveBouloc (31)

L'agence Maisons France Confort d'AUCAMVILLE - NOUVEAU - Projet de construction RE 2020 avec cette maison de 105m² à 5 minutes de BOULOC . Le modèle présenté est ACTUA 105, conception traditionnelle de plain-pied. Il comporte une entrée, un séjour/cuisine de 40m², un cellier, un WC et un espace nuit composé de 4 chambres avec la possibilité en option de faire une suite parentale et une salle de bains. Le garage de 16m² en option est accolé à la maison et accessible par la cuisine. Au coeur de la campagne toulousaine, sur une parcelle constructible de 960 m², vous profiterez de toutes les commodités à seulement 5 minutes. Vous pourrez accéder à Toulouse rapidement par l'A62. Votre conseiller de l'agence Maisons France Confort d'AUCAMVILLE est à votre disposition au 05 34 43 84 38 Xavier FEUGUEUR. PRIX : 239 000 € HF

Proposé par MAISONS FRANCE CONFORT - AUCAMVILLE

Maison neuve - Terrain à bâtir Bouloc (31620) à Bouloc (31), prix 232 709 €
232 709 €
83 m²
2804 €/m²

Maison neuveBouloc (31)

'Votre agence Maisons France Confort d'Aucamville vous propose ce beau projet maison + terrain sur la commune de BOULOC. Vous souhaitez faire construire une maison de plain-pied ? Optez pour le modèle Actua 83 en RE2020! Dans ses 83 m² habitables, on retrouve 3 belles chambres de plus de 10 m², une salle de bains, un cellier et un vaste espace jour de près de 40 m² pour accueillir votre cuisine, votre salon et votre salle à manger ! Autre atout de ce modèle Maisons France Confort Sud, l'avancée du garage en option de près de 17 m² apporte une dynamique à la façade. prix: 232709€hf Pour toutes informations, contactez l'agence MAISONS FRANCE CONFORT d'Aucamville au 05.34.43.84.38'

Proposé par MAISONS FRANCE CONFORT - AUCAMVILLE

Maison neuve - Terrain à bâtir Bouloc (31620) à Bouloc (31), prix 248 875 €
248 875 €
88 m²
2828 €/m²

Maison neuveBouloc (31)

Le modèle ZEPHYR 87 m² est une maison aux lignes sobres et authentiques qui saura vous séduire par son aménagement intérieur conçu pour optimiser votre confort. Ce pavillon vous offre trois chambres, une salle de bains, un bel espace vie de plus de 41 m² et un garage de 14 m², facilement transformable en une quatrième chambre. Cette maison sera répondre aux normes accessibilité. Votre projet de vie est à construire dans le département du Tarn, l'Aude, l'Hérault, la Haute-Garonne ainsi que les Pyrénées Orientales par Oc résidences, votre constructeur sur mesure en Occitanie.

Proposé par OC RESIDENCES

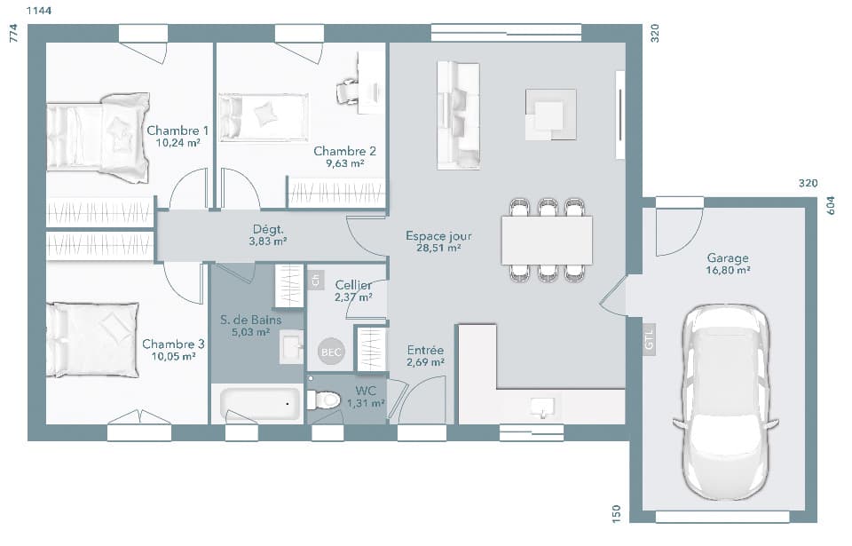
Maison neuve - Terrain à bâtir Bouloc (31620) à Bouloc (31), prix 249 305 €
249 305 €
105 m²
2374 €/m²

Maison neuveBouloc (31)

Votre agence Maisons France Confort d'Aucamville, 1ER CONSTRUCTEUR NATIONAL DE MAISON INDIVIDUELLE, vous propose ce beau projet maison + terrain vers la commune de BOULOC. La ligne de maison Actua est conçue pour coller aux tendances actuelles ! Cette maison de plain-pied de 105 m² en RE2020 est faite astucieusement ! Jugez, vous-même : elle dispose d'une entrée avec son placard, d'une pièce de vie de plus de 40 m², d'un cellier et d'un garage en option. La pièce de vie comprend une jolie cuisine ouverte sur la salle à manger et le salon, un ensemble parfait pour apprécier l'espace et la lumière traversante. Pour la partie nuit, la composition de cette maison est aussi astucieuse : 3 chambres avec placards, une salle de bains mais aussi une suite parentale en option avec rangements et salle d'eau. Contactez-nous dès aujourd'hui ! Prix: 249 305€ HF Pour toutes informations, contactez l'agence MAISONS FRANCE CONFORT d'Aucamville au 05.34.43.84.38

Proposé par MAISONS FRANCE CONFORT - AUCAMVILLE

Maison neuve - Terrain à bâtir Bouloc (31620) à Bouloc (31), prix 224 828 €
224 828 €
73 m²
3080 €/m²

Maison neuveBouloc (31)

'Votre agence Maisons France Confort d'Aucamville vous propose ce projet maison + terrain sur la commune de BOULOC. Actua 73 est un modèle de maison de 73 m² à la ligne épurée et moderne en RE2020. Cette maison, où chaque espace est optimisé et parfaitement fonctionnel, dispose de nombreux atouts : 3 chambres, un espace jour de près de 30 m² et une salle de bains de plus de 5 m². Élément incontournable de ce modèle, il bénéficie de nombreux placards et d'un garage en option accolé avec accès direct à la maison. Actua s'adaptera très bien à l'architecture de votre région vous pouvez en être convaincu ! prix: 224828€ hf Pour toutes informations, contactez l'agence MAISONS FRANCE CONFORT d'Aucamville au 05.34.43.84.38.'

Proposé par MAISONS FRANCE CONFORT - AUCAMVILLE

Maison neuve - Terrain à bâtir Bouloc (31620) à Bouloc (31), prix 233 843 €
233 843 €
83 m²
2817 €/m²

Maison neuveBouloc (31)

'Votre agence Maisons France Confort d'Aucamville vous propose ce beau projet maison + terrain sur la commune de BOULOC. Vous souhaitez faire construire une maison de plain-pied ? Optez pour le modèle Actua 83 en RE2020! Dans ses 83 m² habitables, on retrouve 3 belles chambres de plus de 10 m², une salle de bains, un cellier et un vaste espace jour de près de 40 m² pour accueillir votre cuisine, votre salon et votre salle à manger ! Autre atout de ce modèle Maisons France Confort Sud, l'avancée du garage en option de près de 17 m² apporte une dynamique à la façade. prix: 233843€hf Pour toutes informations, contactez l'agence MAISONS FRANCE CONFORT d'Aucamville au 05.34.43.84.38'

Proposé par MAISONS FRANCE CONFORT - AUCAMVILLE

Maison neuve - Terrain à bâtir Bouloc (31620) à Bouloc (31), prix 242 843 €
242 843 €
95 m²
2556 €/m²

Maison neuveBouloc (31)

'Votre agence Maisons France Confort d'Aucamville vous propose ce beau projet maison + terrain sur la commune de BOULOC. Vous souhaitez faire construire une maison de plain-pied en RE2020? Optez pour le modèle Actua 95 ! Dans ses 95 m² habitables, on retrouve 4 belles chambres de plus de 10 m², une salle de bains, un cellier et un vaste espace jour de près de 40 m² pour accueillir votre cuisine, votre salon et votre salle à manger ! Autre atout de ce modèle Maisons France Confort Sud, l'avancée du garage en option de près de 17 m² apporte une dynamique à la façade. Prix: 242843€ hf Pour toutes informations, contactez l'agence MAISONS FRANCE CONFORT d'Aucamville au 05.34.43.84.38.'

Proposé par MAISONS FRANCE CONFORT - AUCAMVILLE

Maison neuve - Terrain à bâtir Bouloc (31620) à Bouloc (31), prix 241 843 €
241 843 €
95 m²
2546 €/m²

Maison neuveBouloc (31)

'Votre agence Maisons France Confort d'Aucamville vous propose ce beau projet maison + terrain sur la commune de BOULOC. Vous souhaitez faire construire une maison de plain-pied en RE2020? Optez pour le modèle Actua 95 ! Dans ses 95 m² habitables, on retrouve 4 belles chambres de plus de 10 m², une salle de bains, un cellier et un vaste espace jour de près de 40 m² pour accueillir votre cuisine, votre salon et votre salle à manger ! Autre atout de ce modèle Maisons France Confort Sud, l'avancée du garage en option de près de 17 m² apporte une dynamique à la façade. Prix: 241843€ hf Pour toutes informations, contactez l'agence MAISONS FRANCE CONFORT d'Aucamville au 05.34.43.84.38.'

Proposé par MAISONS FRANCE CONFORT - AUCAMVILLE

Maison neuve - Terrain à bâtir Bouloc (31620) à Bouloc (31), prix 225 828 €
225 828 €
73 m²
3094 €/m²

Maison neuveBouloc (31)

'Votre agence Maisons France Confort d'Aucamville vous propose ce projet maison + terrain sur la commune de BOULOC. Actua 73 est un modèle de maison de 73 m² à la ligne épurée et moderne en RE2020. Cette maison, où chaque espace est optimisé et parfaitement fonctionnel, dispose de nombreux atouts : 3 chambres, un espace jour de près de 30 m² et une salle de bains de plus de 5 m². Élément incontournable de ce modèle, il bénéficie de nombreux placards et d'un garage en option accolé avec accès direct à la maison. Actua s'adaptera très bien à l'architecture de votre région vous pouvez en être convaincu ! prix: 225828€ hf Pour toutes informations, contactez l'agence MAISONS FRANCE CONFORT d'Aucamville au 05.34.43.84.38.'

Proposé par MAISONS FRANCE CONFORT - AUCAMVILLE

Maison neuve - Terrain à bâtir Bouloc (31620) à Bouloc (31), prix 209 000 €
209 000 €
73 m²
2863 €/m²

Maison neuveBouloc (31)

L'agence Maisons France Confort d'AUCAMVILLE vous présente ce nouveau projet terrain + maison à 5 minutes de BOULOC. ACTUA 73 est un modèle de maison traditionnelle économe et entièrement personnalisable. Elle se compose d'une entrée, un séjour/cuisine de 30m², un cellier, un WC et un espace nuit composé de 3 chambres et une salle de bains. Le garage de 15m² est en option et accessible par la cuisine. Au coeur de la campagne toulousaine, sur une parcelle constructible de 960 m², vous profiterez des toutes les commodités à seulement ... minutes. Vous pourrez accéder à Toulouse en 25 minutes. Votre conseiller de l'agence Maisons France Confort d'AUCAMVILLE est à votre disposition au 05 34 43 84 38 Xavier FEUGUEUR. PRIX : 209 000 € HF

Proposé par MAISONS FRANCE CONFORT - AUCAMVILLE

Maison neuve - Terrain à bâtir Bouloc (31620) à Bouloc (31), prix 250 000 €
250 000 €
85 m²
2941 €/m²

Maison neuveBouloc (31)

L'agence Maisons France Confort d'AUCAMVILLE conçoit pour vous cette maison neuve aux dernières normes à 5 minutes de BOULOC. Sur une parcelle de 960 m², le modèle présenté est OPTIMA 85 E. Conception traditionnelle à étage, fonctionnelle et personnalisable, elle se compose au rez-de-chaussée, d'une entrée avec accès au cellier, d'une lumineuse pièce de vie avec séjour/cuisine de 30m², un WC. A l'étage vous trouverez 3 chambres et une salle de bains. Le garage de 15 m² est en option et accessible par le cellier. Environnement très agréable avec les commodités à proximité et Toulouse accessible en 25 minutes. Contactez l'agence Maisons France Confort d'AUCAMVILLE au 05 34 43 84 38 Xavier FEUGUEUR. PRIX : 250 000 € HF

Proposé par MAISONS FRANCE CONFORT - AUCAMVILLE

Maison neuve - Terrain à bâtir Bouloc (31620) à Bouloc (31), prix 236 255 €
236 255 €
75 m²
3150 €/m²

Maison neuveBouloc (31)

'Votre agence Maisons France Confort d'Aucamville vous propose ce beau projet maison + terrain sur la commune de BOULOC. S'installer dans une maison neuve RE 2020 n'est plus un rêve. S'accompagnant de 3 chambres, le modèle présenté est Optima 75. Maison au style traditionnel à toit à 2 pans voire 4 en option. Cette maison neuve individuelle d'une surface de 75 m² se compose d'une cuisine de 11.02 m², de 3 chambres au rez-de-chaussée, d'un coin salon de 34.88 m² et d'une salle d'eau. Exposition sud, véritable avantage pour chauffer l'intérieur. La propriété vous fait profiter d'un garage. Consultez votre banque car, en fonction des travaux à réaliser, il est possible que les organismes bancaires vous accordent un financement partiel par crédit PTZ. Si vous êtes en quête d'un bien où habiter en famille, venez vite voir cette offre. prix : 236255€ hf Pour toutes informations, contactez l'agence MAISONS FRANCE CONFORT d'Aucamville au 05.34.43.84.38'

Proposé par MAISONS FRANCE CONFORT - AUCAMVILLE


Illustration Maisons neuves en vente à proximité de Paulhac (31)

Maisons neuves en vente à proximité de Paulhac (31)

**Paulhac (31) : Charme rural et cadre paisible en Haute-Garonne** Située à 20 km au nord-est de Toulouse, dans le département de la Haute-Garonne (31), Paulhac allie proximité urbaine et tranquillité campagnarde. Ce village typique du Lauragais séduit par ses paysages de collines, ses vignobles et son patrimoine historique, comme l’église Saint-Martin. Optez pour une **maison neuve à Paulhac** : profitez d’un cadre de vie préservé, d’un marché immobilier encore accessible et d’une excellente desserte routière (A68 à proximité). Idéal pour les familles ou les télétravailleurs recherchant authenticité et modernité.

Autres villes actives à Haute-garonne (31)


Conseils pour l'achat d'un bien immobilier

Découvrez notre sélection de maisons neuves, synonymes de confort moderne et de sérénité. Trouvez votre futur chez-vous.

L'avantage d'une maison neuve

Choisir une maison neuve, c'est bénéficier des dernières normes énergétiques (RE2020) pour des économies durables, de frais de notaire réduits, et des garanties constructeur (parfait achèvement, décennale) pour une tranquillité d'esprit.

Nos types d'annonces

Explorez nos annonces : maisons clés en main prêtes à décorer, ou programmes terrain + maison pour personnaliser certains aspects.