

- Prix
- 280 000 €
Maison neuve • Saint Arnoult En Yvelines (78)
- Nom et prix
- TERRAIN+MAISON A Saint-Arnoult-en-Yvelines • 280 000 €
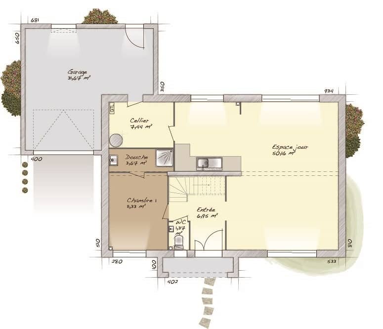
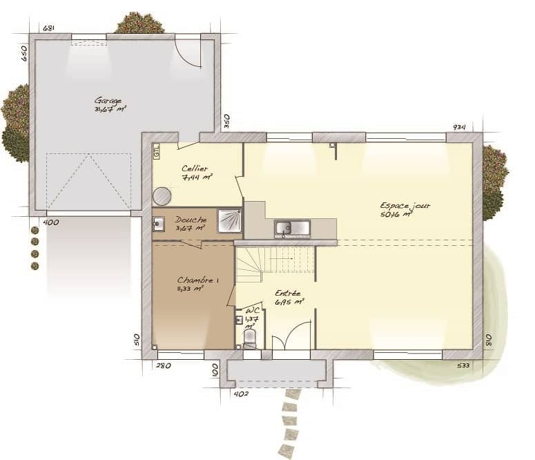
EXCLUSIVITÉ !!Pour plus de renseignements, veuillez contacter votre conseiller Mr MANG MAISON STILL. Ce terrain constructible de 520m² saura surement vous combler. > Découvrez cette jolie parcelle viabilisée avec tout à l'égout. Le terrain est plat, situé dans un quartier calme à proximité des commerces. Construisez votre maison répondant aux normes RE 2020. Les plans sont modifiables à votre convenance permettant de façonner une maison à votre image. Un lieu de vie pour chaque membre de la famille et son intimité. (Mode de chauffage au choix, Grands choix d'équipements et de prestations, Accompagnement dans le choix et l'acquisition du terrain). > À titre informatif et en fonction des travaux à réaliser, ce logement pourra peut-être faire l'objet d'un CRÉDIT IMMOBILIER à taux zéro. Garanties et assurances obligatoires incluses (voir détails en agence). Prix indicatif hors peintures, hors options et hors frais annexes.












