

- Prix
- 435 274 €
Maison neuve • Thorigny-sur-Marne (77)
- Nom et prix
- Terrain à bâtir () • 435 274 €
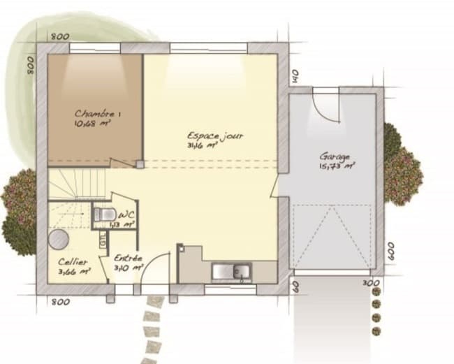
Maison T6 (98 m²) en vente à Thorigny-sur-Marne PROCHE DE PARIS - MAISON 6 PIÈCES NEUVE À vendre : au pied de la gare de Lagny-Thorigny (Paris à 25 min avec le Transilien P), à Thorigny-sur-Marne (77400), Maisons Balency Dammartin-en-Goële vous présente cette maison de 6 pièces de 98 m² et de 1 000 m² de terrain. Cette maison possède 2 niveaux. Son intérieur dispose de quatre chambres, d'une cuisine et d'une salle de bains. La maison est neuve. Plusieurs écoles (maternelle, élémentaire et collège) se trouvent à moins de 10 minutes à pied, tout comme trois crèches. Niveau transports en commun, il y a la gare Lagny-Thorigny dans les environs. On trouve une bibliothèque, un tennis, des commerces, des boulangeries, un supermarché, des boucheries-charcuteries et deux bureaux de poste à proximité du logement. Elle est à vendre pour la somme de 435 274 €. Contactez Sébastien DARTEVELLE (tél : 06-24-63-58-60) pour tout renseignement sur la maison. Maisons Balency Dammartin-en-Goële vous accompagne dans tous vos projets immobiliers et à toutes les étapes de votre projet.


