

- Prix
- 840 000 €
Maison neuve • Bry-sur-Marne (94)
- Nom et prix
- Terrain à bâtir Bry-sur-Marne (94360) • 840 000 €
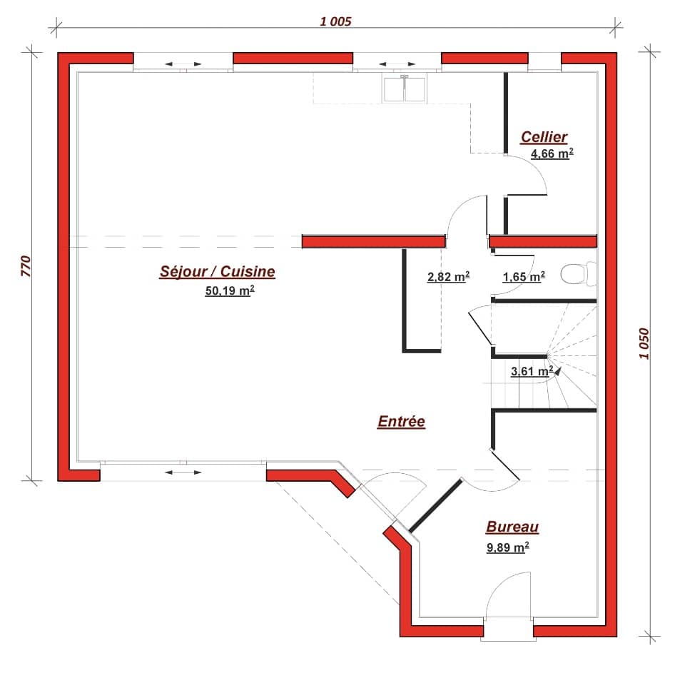
Bry sur marne, 600m à pied de la gare RER Bry sur Marne. Rue calme pavillonnaire. Cette maison à la fois originale et esthétique lui permet de vous offrir de grands espaces lumineux. Le rez-de-chaussée est composé d'une entrée, d'un très grand espace pour les pièces à vivre ouvert sur une cuisine et son cellier. Un bureau indépendant et isolé des autres pièces, adaptable selon vos besoins. L'étage rassemble les espaces plus privés, trois chambres et une suite parentale, qui dispose de sa propre salle d'eau privative, et une salle de bain avec baignoire et fenêtre pour le reste de famille. Les trois mots clef de cette maison sont : convivialité, tranquillité et intimité. Terrain arboré d'une superficie de 497m2 disposant d'une façade sur rue de presque 12m. Le terrain permet la construction d'une piscine. Demandez plus de renseignements auprès de votre conseiller à Bry sur Marne au 06.41.56.29.99 Chez Maisons Berval, nous proposons des constructions sur mesure, de standing, aux dernières normes et NF HQE (Normes françaises haute qualité environnementale)












