

- Prix
- 173 800 €
Maison neuve • Beauvais-sur-Matha (17)
- Nom et prix
- Terrain à bâtir Beauvais-sur-Matha (17490) • 173 800 €
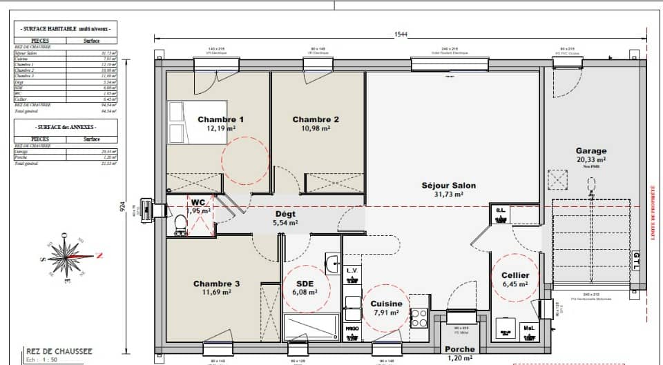
Beauvais-sur-Matha : maison F4 (80 m²) en vente EMPLACEMENT PRIVILÉGI- MAISON 4 PIÈCES NEUVE En vente : à Beauvais-sur-Matha (17490), venez découvrir ce projet de maison de 4 pièces de 80 m². Cette maison comporte trois chambres, une cuisine et une salle de bains. Le terrain du bien est de 866 m². La maison se situe dans un secteur prisé. L'École Primaire Beauvais Sur Matha est implantée à moins de 10 minutes à pied. On trouve un bureau de poste dans les environs. Son prix de vente est de 173 800 €. Cette maison est en zone C du prêt à taux zéro (PTZ). Prenez contact avec notre agence (OLIVRÉ Patrick : O6-72-31-16-34) pour toute information sur la maison, sur les modalités de vente ou sur les démarches à suivre. Concrétisez vos projets immobiliers avec Maisons de la Côte Atlantique Saintes.







