

- Prix
- 217 828 €
Maison neuve • Roquesérière (31)
- Nom et prix
- Terrain à bâtir Roquesérière (31380) • 217 828 €
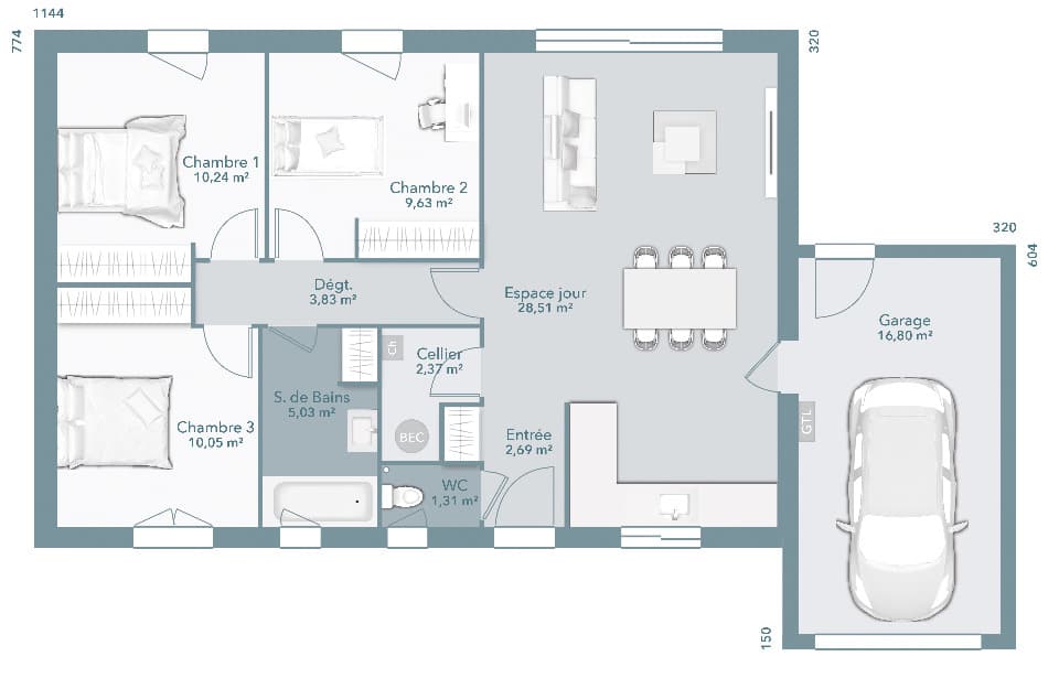
Terrain Viabilisé de 500 m² + Maison Actua 73 à Construire vers Roquesérière - Votre projet clé en main ! Sur ce terrain plat , entièrement viabilisé, à proximité de Roquesérière, réalisez votre rêve avec la maison Actua 73. Ce modèle moderne de 73 m², avec 3 chambres et un garage, offre un confort optimal à un prix compétitif. Pourquoi choisir Maisons France Confort groupe Hexaom ? Terrain prêt à construire Maison personnalisée et fonctionnelle Accompagnement complet : du financement à la construction Expertise du leader Hexaom : qualité, réactivité et sécurité de votre projet Prix terrain+ maison: 217 828€ hf Ne laissez pas passer cette chance de devenir propriétaire ! Contactez-nous dès maintenant pour une étude personnalisée et démarrez votre projet en toute sérénité : Agence MAISONS FRANCE CONFORT d'Aucamville au 05.34.43.84.38.