

- Prix
- 227 000 €
Maison neuve • Mouen (14)
- Nom et prix
- Terrain à bâtir Mouen (14790) • 227 000 €
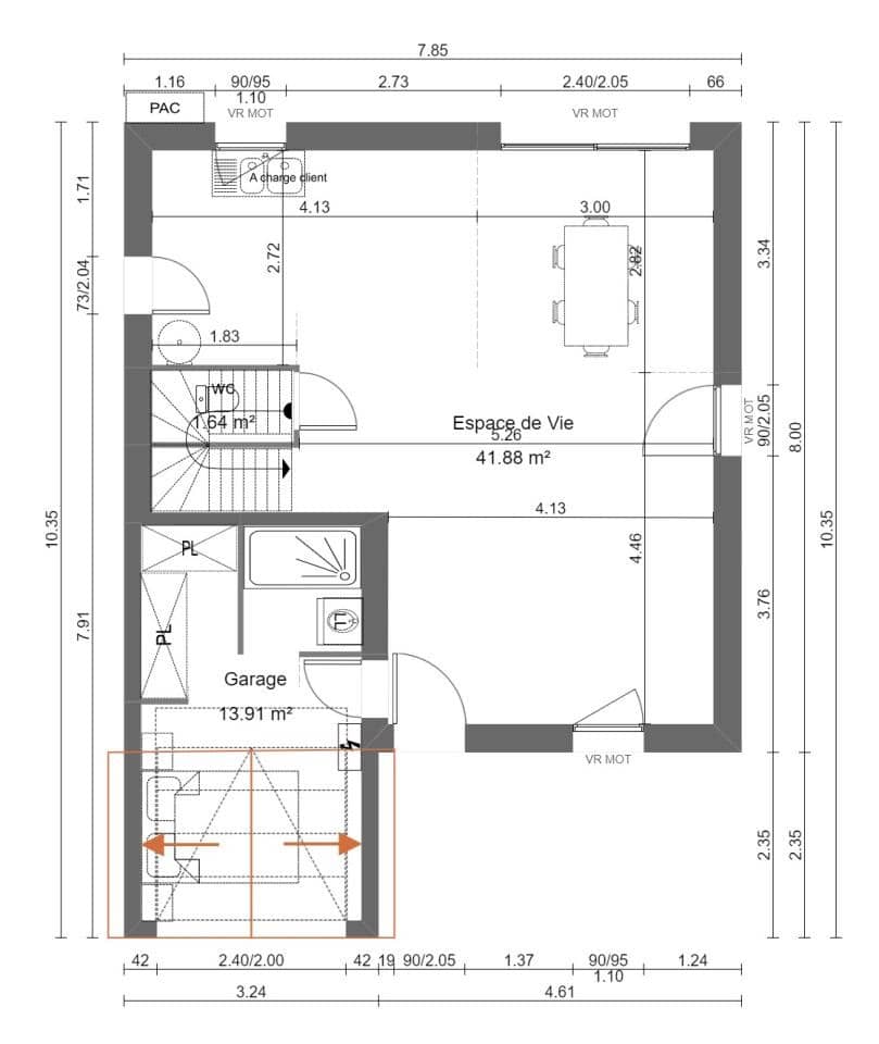
Maison de 5 pièces (90 m²) en vente à Mouen PROCHE DE CAEN - MAISON 5 PIÈCES NEUVE En vente : située à 22 km de la Manche et à quelques kilomètres de Caen, nous sommes ravis de vous proposer cette maison de 5 pièces de 90 m² à Mouen (14790). Cette maison comporte 2 niveaux. Elle offre quatre chambres, une cuisine et deux salles de bains. Cette maison est neuve. Le terrain de la propriété est de 310 m². L'École Élémentaire Pierre Herbet Mouen et l'École Maternelle Pierre Herbet Mouen sont implantées à moins de 10 minutes à pied. Côté transports, on trouve deux gares (Bretteville-Norrey et Saint-Germain-en-Laye Bel-Air-Fourqueux T13) à moins de 10 minutes en voiture. L'autoroute A84 et les nationales N814 et N13 sont accessibles à moins de 6 km. Il y a une bibliothèque, une boulangerie et un commerce dans les environs. Elle est à vendre pour la somme de 227 000 €. Prenez contact avec notre agence (HUE Emilie : 06-29-81-46-66) pour toute question sur cette maison, sur les démarches à suivre ou sur les modalités de vente.









