

- Prix
- 223 340 €
Maison neuve • Sainte-Valière (11)
- Nom et prix
- Terrain à bâtir Sainte-Valière (11120) • 223 340 €
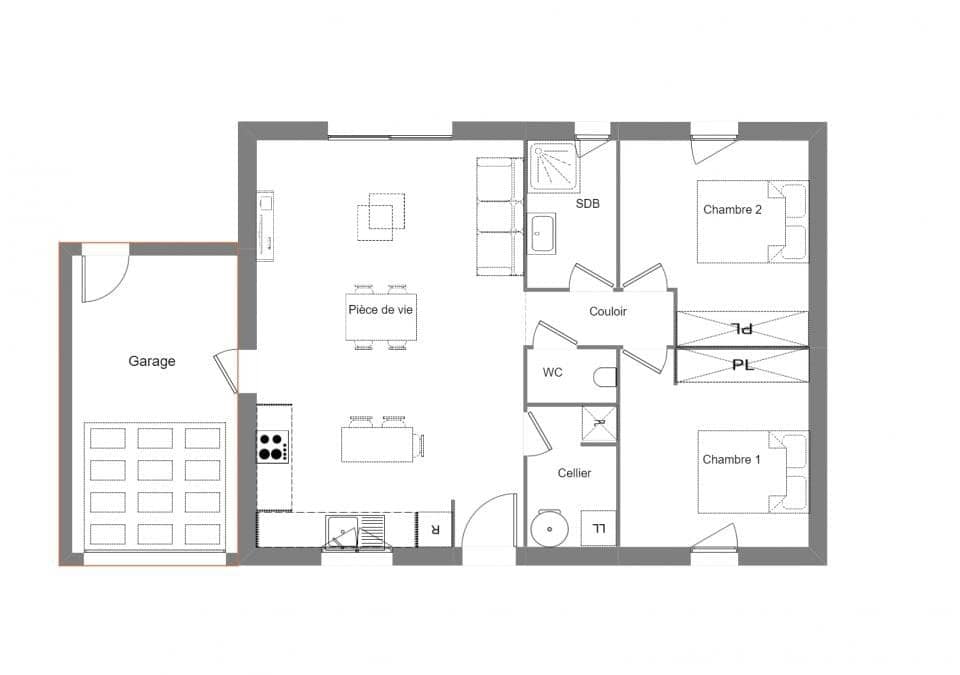
La Rose des Vents 89 est une maison moderne, bien pensée, privilégiant le confort dans toute la maison. Elle dispose d'une surface de 89 m² habitable, de plain-pied, optimisée et composée d'un hall d'entrée avec WC et placards, d'un salon séjour de 41 m² qui bénéficie de larges baies vitrées pour un plein ensoleillement, et d'un coin nuit avec 3 grandes chambres et une belle SDB. Un Garage de 15 m² viendra agrémenter le confort de votre maison. Selon l'orientation du terrain et selon vos préférences, de nombreuses options et aménagements sont possibles. Laissez- vous séduire par son originalité et ses volumes et contactez nous pour construire votre projet de vie dans le Tarn, l'Aude, L'Hérault, la Haute-Garonne ainsi que les Pyrénées Orientales.












