

- Prix
- 452 000 €
Maison neuve • Conflans-Sainte-Honorine (78)
- Nom et prix
- Terrain à bâtir Conflans-Sainte-Honorine (78700) • 452 000 €
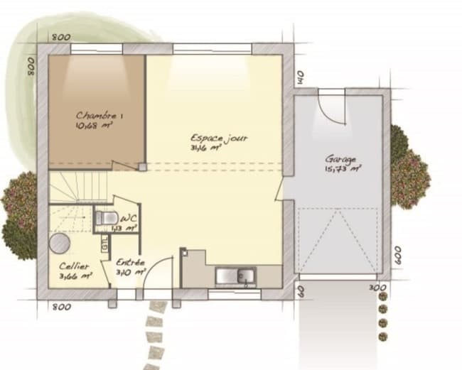
VENTE : maison T6 (98 m²) à Conflans-Sainte-Honorine MAISON 6 PIÈCES NEUVE À vendre : à proximité du Transilien J (20 min de Paris), notre agence Maisons Balency Saint-Maur-des-Fossés est ravie de vous présenter cette maison de 6 pièces de 98 m² et de 458 m² de terrain à Conflans-Sainte-Honorine (78700). Elle se divise en quatre chambres, une cuisine et une salle de bains. C'est une maison de 2 niveaux. Elle est neuve. Plusieurs établissements scolaires (maternelle, élémentaire et lycée) se trouvent à moins de 10 minutes à pied, tout comme deux structures d'accueil pour la petite enfance. Niveau transports en commun, il y a la gare Conflans-Sainte-Honorine à quelques pas du bien. On trouve un tennis, une bibliothèque, des commerces, des boulangeries, un supermarché, des épiceries et quatre supérettes à quelques minutes. Son prix de vente est de 452 000 €. Contactez Aurelien MONTANIER (tél : 06-24-66-88-34) pour toute question sur la maison. Maisons Balency Saint-Maur-des-Fossés est là pour vous accompagner dans toutes vos démarches.












