logo de nos-terrains.com

379 maisons neuves à vendre à St crepin aux bois (60) (à partir de 250,000 €)

Résultats de recherche

Maison neuve - Terrain à bâtir  () à Choisy-au-Bac (60), prix 275 000 €
275 000 €
71 m²
3873 €/m²

Maison neuveChoisy-au-Bac (60)

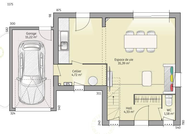
Venez concevoir votre maison sur un terrain à bâtir située sur la charmante commune de CHOISY AU BAC (60), à 5 minutes au Nord de COMPIEGNE (60), d'une superficie de 592 m². Exemple de projet maison de type Plain pied de 71 m² avec un garage intégré, 2 chambres et 1 salle de bain. Tous nos projets sont entièrement réalisés sur-mesure, de nombreuses prestations incluses: baies coulissantes en aluminium, volets roulants intégrés à la maçonnerie (non-apparents) motorisés. Entrée, cuisine, pièce de vie, cellier et pièces d'eau carrelés, maison prête à décorer, clef en main. Pompe à chaleur ou pompe à chaleur hybride (gaz) dernière génération (classe énergétique A+), plancher chauffant RDC (et ETAGE), sèche-serviettes, plusieurs choix de menuiseries intérieures, construction en brique. RE 2020. Projet terrain + maison + frais annexes. Pour tout renseignement contacter XAVIER de l'agence Maisons France Confort : 06/16/27/53/27

Proposé par MAISONS FRANCE CONFORT - COMPIEGNE

Maison neuve - Terrain à bâtir  () à Choisy-au-Bac (60), prix 295 000 €
295 000 €
90 m²
3278 €/m²

Maison neuveChoisy-au-Bac (60)

Venez concevoir votre maison sur un terrain de CHOISY AU BAC (60) d'une superficie de 525 m²,plat, avec belle façade et belle exposition. Exemple de projet maison de 90 m2 loi Carrez avec garage. Tous nos projets sont entièrement réalisés sur-mesure, de nombreuses prestations incluses: baies coulissantes en aluminium, volets roulants intégrés à la maçonnerie (non-apparents) motorisés. Entrée, cuisine, pièce de vie, cellier et pièces d'eau carrelés, maison prête à décorer, clef en main. Pompe à chaleur ou pompe à chaleur hybride (gaz) dernière génération (classe énergétique A+), plancher chauffant RDC (et ETAGE), sèche-serviettes, plusieurs choix de menuiseries intérieures, construction en brique. RE 2020. Projet terrain + maison + frais annexes. Pour tout renseignement contacter XAVIER de l'agence Maisons France Confort : 06/16/27/53/27

Proposé par MAISONS FRANCE CONFORT - COMPIEGNE

Maison neuve - Terrain à bâtir  () à Choisy-au-Bac (60), prix 275 000 €
275 000 €
71 m²
3873 €/m²

Maison neuveChoisy-au-Bac (60)

Venez concevoir votre maison sur un terrain à bâtir située sur la charmante commune de CHOISY AU BAC (60), à 5 minutes au Nord de COMPIEGNE (60), d'une superficie de 592 m². Exemple de projet maison de type Plain pied de 71 m² avec un garage intégré, 2 chambres et 1 salle de bain. Tous nos projets sont entièrement réalisés sur-mesure, de nombreuses prestations incluses: baies coulissantes en aluminium, volets roulants intégrés à la maçonnerie (non-apparents) motorisés. Entrée, cuisine, pièce de vie, cellier et pièces d'eau carrelés, maison prête à décorer, clef en main. Pompe à chaleur ou pompe à chaleur hybride (gaz) dernière génération (classe énergétique A+), plancher chauffant RDC (et ETAGE), sèche-serviettes, plusieurs choix de menuiseries intérieures, construction en brique. RE 2020. Projet terrain + maison + frais annexes. Pour tout renseignement contacter XAVIER de l'agence Maisons France Confort : 06/16/27/53/27

Proposé par MAISONS FRANCE CONFORT - COMPIEGNE

Maison neuve - Terrain à bâtir  () à Choisy-au-Bac (60), prix 280 000 €
280 000 €
78 m²
3590 €/m²

Maison neuveChoisy-au-Bac (60)

Venez concevoir votre maison sur un terrain à CHOISY AU BAC (60) d'une superficie de 525 m²,plat, belle façade, avec une belle exposition. Exemple de projet maison de 78 m2 loi Carrez avec Garage. Tous nos projets sont entièrement réalisés sur-mesure, de nombreuses prestations incluses: baies coulissantes en aluminium, volets roulants intégrés à la maçonnerie (non-apparents) motorisés. Entrée, cuisine, pièce de vie, cellier et pièces d'eau carrelés, maison prête à décorer, clef en main. Pompe à chaleur ou pompe à chaleur hybride (gaz) dernière génération (classe énergétique A+), plancher chauffant RDC (et ETAGE), sèche-serviettes, plusieurs choix de menuiseries intérieures, construction en brique. RE 2020. Projet terrain + maison + frais annexes. Pour tout renseignement contacter XAVIER de l'agence Maisons France Confort : 06/16/27/53/27

Proposé par MAISONS FRANCE CONFORT - COMPIEGNE

Maison neuve - Terrain à bâtir  () à Choisy-au-Bac (60), prix 281 000 €
281 000 €
102 m²
2755 €/m²

Maison neuveChoisy-au-Bac (60)

Maison de type r+1, située à Choisy au Bac , sur un terrain de 475m² , entièrement viabilisé . 5 chambres , avec rangements intégrés ,2 salles d eau équipées , séjour traversant et lumineux, cellier . Nombreuses prestations incluses : Carrelage 45x45 , volets centralisés et intégrés à la maçonnerie , packs alarme et domotique , normes RE2020, plans personnalisables et modifiables . Profitez d un accompagnement intégral : Financement , visite technique du terrain , gestion administrative .. Rendez vous en agence ou à votre domicile . VERON ANTHONY /07/77/85/58/88/

Proposé par MAISONS FRANCE CONFORT - COMPIEGNE

Maison neuve - Terrain à bâtir  () à Choisy-au-Bac (60), prix 380 000 €
380 000 €
122 m²
3115 €/m²

Maison neuveChoisy-au-Bac (60)

Venez concevoir votre maison sur un terrain à bâtir située sur la charmante commune de CHOISY AU BAC (60), à 5 minutes au Nord de COMPIEGNE (60), d'une superficie de 592 m². Exemple de projet maison de 122 m², Sans Garage. Tous nos projets sont entièrement réalisés sur-mesure, de nombreuses prestations incluses: baies coulissantes en aluminium, volets roulants intégrés à la maçonnerie (non-apparents) motorisés. Entrée, cuisine, pièce de vie, cellier et pièces d'eau carrelés, maison prête à décorer, clef en main. Pompe à chaleur ou pompe à chaleur hybride (gaz) dernière génération (classe énergétique A+), plancher chauffant RDC (et ETAGE), sèche-serviettes, plusieurs choix de menuiseries intérieures, construction en brique. RE 2020. Projet terrain + maison + frais annexes. Pour tout renseignement contacter XAVIER de l'agence Maisons France Confort : 06/16/27/53/27

Proposé par MAISONS FRANCE CONFORT - COMPIEGNE

Maison neuve - Terrain à bâtir  () à Choisy-au-Bac (60), prix 379 850 €
379 850 €
155 m²
2451 €/m²

Maison neuveChoisy-au-Bac (60)

Maison de type R+1 ; située à Choisy au Bac , sur un terrain de 592m² , au coeur meme de la commune . 5 chambres , avec rangements intégrés , 2 salles d eau équipées , séjour traversant et lumineux . Nombreuses prestations incluses : Carrelage 45x45 , volets centralisés et intégrés à la maçonnerie , packs alarme et domotique , normes RE2020, plans personnalisables et modifiables . Profitez d un accompagnement intégral : Financement , visite technique du terrain , gestion administrative .. Rendez vous en agence ou à votre domicile . VERON ANTHONY /07/77/85/58/88/

Proposé par MAISONS FRANCE CONFORT - COMPIEGNE

Maison neuve - Terrain à bâtir  () à Choisy-au-Bac (60), prix 340 000 €
340 000 €
115 m²
2957 €/m²

Maison neuveChoisy-au-Bac (60)

Venez concevoir votre maison sur un terrain de CHOISY AU BAC (60) d'une superficie de 525 m²,plat, avec belle façade et belle exposition. Exemple de projet maison de 115 m2 loi Carrez avec garage. Tous nos projets sont entièrement réalisés sur-mesure, de nombreuses prestations incluses: baies coulissantes en aluminium, volets roulants intégrés à la maçonnerie (non-apparents) motorisés. Entrée, cuisine, pièce de vie, cellier et pièces d'eau carrelés, maison prête à décorer, clef en main. Pompe à chaleur ou pompe à chaleur hybride (gaz) dernière génération (classe énergétique A+), plancher chauffant RDC (et ETAGE), sèche-serviettes, plusieurs choix de menuiseries intérieures, construction en brique. RE 2020. Projet terrain + maison + frais annexes. Pour tout renseignement contacter XAVIER de l'agence Maisons France Confort : 06/16/27/53/27

Proposé par MAISONS FRANCE CONFORT - COMPIEGNE

Maison neuve - Terrain à bâtir  () à Choisy-au-Bac (60), prix 340 000 €
340 000 €
100 m²
3400 €/m²

Maison neuveChoisy-au-Bac (60)

Venez concevoir votre maison sur un terrain à bâtir située sur la charmante commune de CHOISY AU BAC (60), à 5 minutes au Nord de COMPIEGNE (60), d'une superficie de 592 m². Exemple de projet maison de 100 m² avec un garage intégré. Tous nos projets sont entièrement réalisés sur-mesure, de nombreuses prestations incluses: baies coulissantes en aluminium, volets roulants intégrés à la maçonnerie (non-apparents) motorisés. Entrée, cuisine, pièce de vie, cellier et pièces d'eau carrelés, maison prête à décorer, clef en main. Pompe à chaleur ou pompe à chaleur hybride (gaz) dernière génération (classe énergétique A+), plancher chauffant RDC (et ETAGE), sèche-serviettes, plusieurs choix de menuiseries intérieures, construction en brique. RE 2020. Projet terrain + maison + frais annexes. Pour tout renseignement contacter XAVIER de l'agence Maisons France Confort : 06/16/27/53/27

Proposé par MAISONS FRANCE CONFORT - COMPIEGNE

Maison neuve - Terrain à bâtir  () à Choisy-au-Bac (60), prix 360 000 €
360 000 €
122 m²
2951 €/m²

Maison neuveChoisy-au-Bac (60)

Venez concevoir votre maison sur un terrain de CHOISY AU BAC (60) d'une superficie de 525 m²,plat, avec belle façade et belle exposition. Exemple de projet maison de 122 m2 loi Carrez avec garage. Tous nos projets sont entièrement réalisés sur-mesure, de nombreuses prestations incluses: baies coulissantes en aluminium, volets roulants intégrés à la maçonnerie (non-apparents) motorisés. Entrée, cuisine, pièce de vie, cellier et pièces d'eau carrelés, maison prête à décorer, clef en main. Pompe à chaleur ou pompe à chaleur hybride (gaz) dernière génération (classe énergétique A+), plancher chauffant RDC (et ETAGE), sèche-serviettes, plusieurs choix de menuiseries intérieures, construction en brique. RE 2020. Projet terrain + maison + frais annexes. Pour tout renseignement contacter XAVIER de l'agence Maisons France Confort : 06/16/27/53/27

Proposé par MAISONS FRANCE CONFORT - COMPIEGNE

Maison neuve - Terrain à bâtir  () à Choisy-au-Bac (60), prix 289 000 €
289 000 €
98 m²
2949 €/m²

Maison neuveChoisy-au-Bac (60)

Maison de type R+1 située à Choisy au Bac , sur un terrain de 475m² , entièrement viabilisé . 4 chambres , avec rangements intégrés , salle d eau équipée , séjour traversant et lumineux, cellier et garage accolé . Nombreuses prestations incluses : Carrelage 45x45 , volets centralisés et intégrés à la maçonnerie , packs alarme et domotique , normes RE2020, plans personnalisables et modifiables . Profitez d un accompagnement intégral : Financement , visite technique du terrain , gestion administrative .. Rendez vous en agence ou à votre domicile . VERON ANTHONY /07/77/85/58/88/

Proposé par MAISONS FRANCE CONFORT - COMPIEGNE

Maison neuve - Terrain à bâtir  () à Choisy-au-Bac (60), prix 335 000 €
335 000 €
115 m²
2913 €/m²

Maison neuveChoisy-au-Bac (60)

Faites construire votre maison sur mesure à CHOISY AU BAC, charmant village de l'Oise, dans un environnement calme et verdoyant. Avec Maison France Confort, n°1 de la construction en France, donnez vie à votre projet de vie grâce à une maison moderne et adaptée à vos besoins. Votre maison sera idéalement située sur un terrain de 475 m², proche des écoles, commerces, services médicaux et grands axes. Une opportunité unique d'allier confort, sérénité et praticité au quotidien. Exemple de projet : Maison contemporaine avec combles aménagés de 4 chambres + garage intégré, à partir de 335 000 € [prix à adapter selon le projet]. N'attendez plus pour concrétiser vos envies de construction ! Contactez-moi dès aujourd'hui pour étudier votre projet au 06 16 27 53 27

Proposé par MAISONS FRANCE CONFORT - COMPIEGNE


Illustration Maisons neuves en vente à proximité de St crepin aux bois (60)

Maisons neuves en vente à proximité de St crepin aux bois (60)

**Saint-Crépin-aux-Bois (Oise, 60)** est un charmant village situé à 10 km de Compiègne, en bordure de la forêt de Laigue. Niché dans un cadre verdoyant, il allie tranquillité et proximité des axes routiers (A1, N32). Son église romane du XIIe siècle, classée, et ses maisons en pierre en font un lieu chargé d’histoire. Idéal pour les familles, ce cadre préservé séduit aussi les investisseurs : des terrains constructibles y sont disponibles, offrant des opportunités pour des maisons neuves alliant charme et modernité.

Autres villes actives à Oise (60)


Conseils pour l'achat d'un bien immobilier

Découvrez notre sélection de maisons neuves, synonymes de confort moderne et de sérénité. Trouvez votre futur chez-vous.

L'avantage d'une maison neuve

Choisir une maison neuve, c'est bénéficier des dernières normes énergétiques (RE2020) pour des économies durables, de frais de notaire réduits, et des garanties constructeur (parfait achèvement, décennale) pour une tranquillité d'esprit.

Nos types d'annonces

Explorez nos annonces : maisons clés en main prêtes à décorer, ou programmes terrain + maison pour personnaliser certains aspects.