

- Prix
- 446 500 €
Maison neuve • Chalifert (77)
- Nom et prix
- Terrain à bâtir Chalifert (77144) • 446 500 €
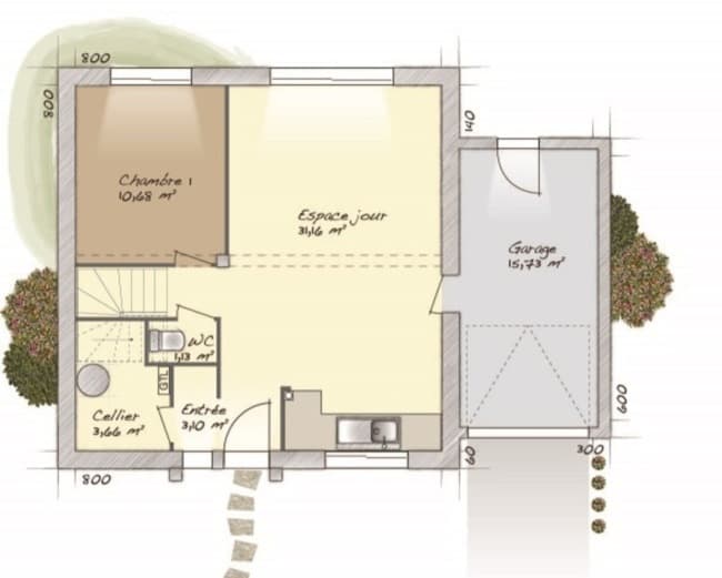
VENTE d'une maison T6 (98 m²) à Chalifert PROCHE DE SAINT-DENIS - MAISON 6 PIÈCES NEUVE À vendre : au pied du Transilien P (gare d'Esbly, 30 min de Paris), votre agence Maisons Balency Dammartin-en-Goële est heureuse de vous proposer cette maison de 6 pièces de 98 m² à Chalifert (77144). Elle compte quatre chambres, une cuisine et une salle de bains. Le terrain de cette maison est de 250 m². Cette maison comporte 2 niveaux. Elle est neuve. Il y a l'École Primaire Clos de la Fontaine à moins de 10 minutes à pied. Côté transports, on trouve la ligne de RER A (Chessy-Marne-La-Vallée) ainsi que sept gares à moins de 10 minutes en voiture. On trouve plusieurs commerces dans les environs. Son prix de vente est de 446 500 €. Prenez contact avec notre agence (Sébastien DARTEVELLE : 06-24-63-58-60) pour toute question sur la propriété ou sur les modalités de vente. Maisons Balency Dammartin-en-Goële vous accompagne dans toutes vos démarches et dans tous vos projets immobiliers.