

- Prix
- 346 500 €
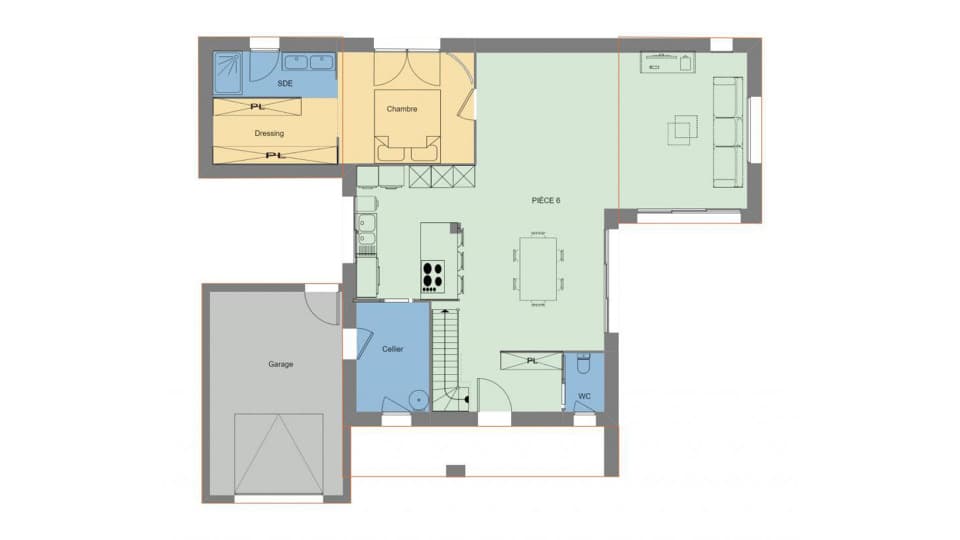
Maison neuve • Andouillé-Neuville (35)
- Nom et prix
- Terrain à bâtir () • 346 500 €
Andouillé-Neuville : maison de 5 pièces (131 m²) à vendre IDÉALEMENT SITUÉE - MAISON 5 PIÈCES NEUVE En vente : située à 36 km de la Manche et à 22 km de Rennes, nous vous présentons cette maison de 5 pièces de 131 m² idéalement située dans Andouillé-Neuville (35250). Son intérieur inclut quatre chambres, une cuisine et deux salles de bains. Le terrain de la propriété s'étend sur 560 m². Il s'agit d'une maison de 2 niveaux. Elle est neuve. Cette maison se trouve dans un secteur recherché. L'École Primaire Publique les Prés Verts est implantée à moins de 10 minutes à pied. Niveau transports en commun, il y a cinq gares à moins de 10 minutes en voiture. L'autoroute A84 et les nationales N136 et N157 sont accessibles à moins de 20 km. On trouve une bibliothèque dans les environs. Elle est proposée à l'achat pour 346 500 €. N'hésitez pas à prendre contact avec notre agence (Romain CIMINNA : 02-99-83-07-20) pour toute question sur la maison ou sur les démarches à suivre. Maisons de l'Avenir Cesson-Sévigné vous accompagne dans tous vos projets immobiliers et à toutes les étapes de l'achat.